【CCD】深圳保利瑧誉府会所设计方案
一、主题设计思想
主题:『都市殿堂 · 现代贵族生活会所』
深圳保利瑧誉府会所以“城市塔尖人群的第二客厅”为定位,将经典宫廷式秩序与现代艺术气质结合:
- 通过高耸柱廊、纵深中轴、雕塑级楼梯和泳池,把会所塑造成一座“都市殿堂”;
- 以黑白格纹地面、铜金线条、大幅艺术装置形成强烈的时尚记忆点;
- 功能上串联迎宾、社交、阅读、酒廊、泳池等多种生活场景,让业主在家门口完成社交、放松与仪式感体验。
本质是:用酒店级会所标准,为住区构建“现代贵族式的社交客厅与生活剧场”。
二、设计风格
- 整体风格:现代古典 + 都会 Art Deco 雅奢风
- 立面和空间骨架借鉴古典柱式、拱券、壁龛和檐口,但线条被大大简化;
- 局部融入 Art Deco 的放射状纹样、金属线条、对称构图和几何图形;
- 气质上既有“老钱”式庄重,又带着时尚都会感。
- 气质特征
- 强轴线、强对称、强体量感;
- “黑白+金属”的高级冷感,由软装色块和灯光来调暖。
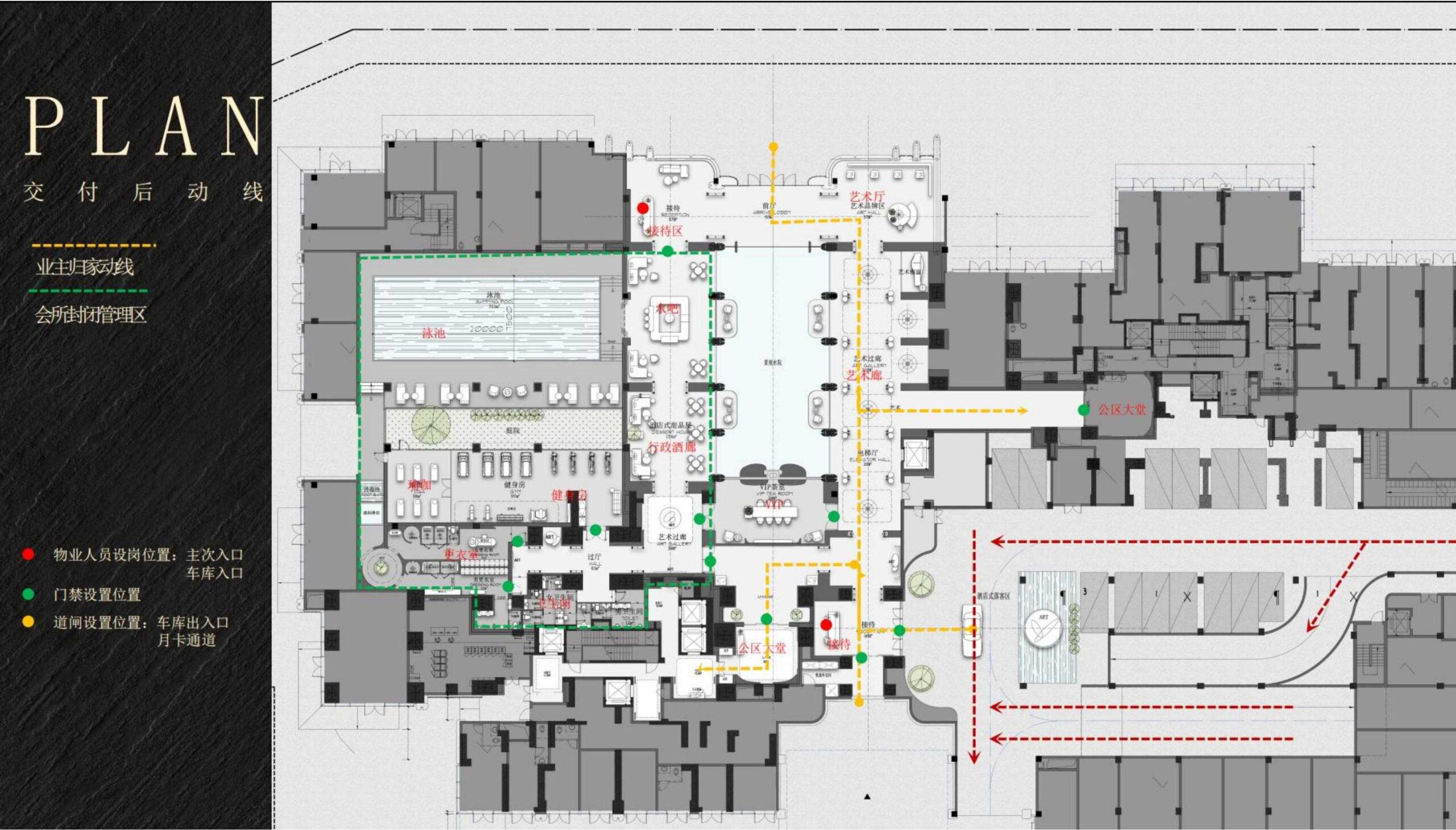
三、空间布局
- 入口门廊与前庭
- 应用方式:外部退台+对称台阶,中央门洞两侧列植与立柱,形成“入殿”仪式。
- 功能特性:从城市街景过渡到会所领域,强调归家尊崇感。
- 迎宾大堂(主中庭)
- 应用方式:挑高空间,中轴对称;两侧高耸立柱,尽端为艺术画或雕塑;地面多采用黑白拼花。
- 功能特性:完成形象展示、迎宾与初次等待,是整个会所的“精神客厅”。
- 电梯厅与走廊序列
- 应用方式:电梯厅用大理石墙面+金属线条,顶面灯带围合,走廊延续黑白地面与壁灯节奏。
- 功能特性:承接各功能空间,保持“酒店式”尊贵体验。
- 大堂吧 / 社交客厅
- 应用方式:围绕中庭一侧展开,沙发、单椅围绕咖啡桌布置,背后是酒柜或书墙。
- 功能特性:业主会客、商务洽谈、下午茶与阅读的主要场所。
- 私享会客室 / 阅读室
- 应用方式:相对独立房间,尺度适中,壁炉意向背景、书柜、单人沙发与长桌组合。
- 功能特性:满足小范围聚会、阅读、安静办公等需求。
- 多功能厅 / 宴会区
- 应用方式:平顶或微拱形天花,四周分布可移动家具,中性背景+可调节灯光。
- 功能特性:举办小型沙龙、讲座、私宴或业主活动。
- 室内泳池区
- 应用方式:长条形泳池,两侧休闲躺椅,顶面采用平顶+周边灯槽;窗边或端景设置绿植与装饰墙。
- 功能特性:提供运动与放松的核心配套,同时也是视觉冲击力强的展示空间。
四、色彩搭配
- 象牙白 / 暖白
- 应用位置:墙面大面积、柱身、顶面。
- 色彩特征:高明度、略偏暖。
- 搭配作用:构成“殿堂感”背景,保证开阔与明亮,为强对比的黑色和金属提供衬托。
- 深炭灰 / 黑色
- 应用位置:地面拼花、踢脚线、局部墙面和门框。
- 色彩特征:低明度、高对比。
- 搭配作用:打造强烈节奏和仪式感,增强厚重与精英气质。
- 铜金 / 香槟金
- 应用位置:灯具、线条框架、装饰条、栏杆。
- 色彩特征:低饱和金属光泽。
- 搭配作用:强调纵向比例和细节精致,传达轻奢属性。
- 酒红 / 赭棕 / 深绿色(局部)
- 应用位置:软装沙发、皮椅、艺术挂画。
- 色彩特征:饱和度中高、气质成熟。
- 搭配作用:为高冷黑白空间注入温度和贵族感,避免空间过于冷峻。
- 湖蓝 / 孔雀蓝(局部点缀)
- 应用位置:艺术画、靠垫、某些单椅。
- 搭配作用:带来时尚和年轻感,平衡沉稳主色。
五、材质分析
- 大理石 / 仿石大板
- 应用位置:大堂地面、泳池周边地面、电梯厅及部分墙面。
- 材质特性:纹理自然、光感通透,是豪宅会所的标志材质;黑白拼花制造高级图案感。
- 木饰面与木格栅
- 应用位置:墙面局部、门套、酒柜、书柜。
- 材质特性:纹理温润,柔化石材的冷硬,提升居家感。
- 金属(不锈钢拉丝、钛金、铜板)
- 应用位置:线条、灯具结构、栏杆、装饰雕塑。
- 材质特性:耐久、反射光线,通过细线条和大块雕塑提升精致度和艺术性。
- 织物硬包 / 皮革软包
- 应用位置:局部墙面、门扇、沙发与单椅。
- 材质特性:吸音、触感柔软,带来舒适同时增强空间奢华感。
- 马赛克 / 艺术拼花
- 应用位置:局部背景、泳池端墙。
- 材质特性:重复纹理与金属色点缀,制造视觉焦点和灯光反射效果。
六、灯光设计
- 筒灯+线性灯带基础照明
- 应用位置:大堂、走廊、会客厅、泳池。
- 功能特性:提供均匀基础光,保证空间明亮并强化纵深与边界。
- 大型装饰吊灯
- 应用位置:大堂主轴、部分会客厅。
- 功能特性:成为空间的视觉核心,呼应“殿堂”主题,材质多为金属+玻璃或水晶。
- 壁灯与柱灯
- 应用位置:柱身、墙面凹龛两侧。
- 功能特性:强调垂直节奏,提升墙面层次与仪式感,同时减少顶光压力。
- 洗墙灯与地脚灯
- 应用位置:艺术墙、雕塑、泳池墙面下沿。
- 功能特性:通过光带勾勒材质纹理,塑造氛围与动线,引导行走方向。
七、艺术陈设装饰元素
- 抽象羽翼雕塑 / 立体艺术装置
- 应用位置:大堂或端景位。
- 作用:象征腾飞与城市活力,材质多为金属或复合材料,强化项目记忆点。
- 大幅马赛克/拼贴艺术墙
- 应用位置:端景或接待背景。
- 作用:以抽象图案与金属光泽体现艺术感和手工气质。
- 经典装饰画与摄影作品
- 应用位置:走廊、会客厅墙面。
- 作用:传递文化品味,提升空间的“画廊”属性。
- 绿植与盆景
- 应用位置:柱间、入口两侧、泳池端部。
- 作用:在高比例石材、金属环境中引入自然柔软感,平衡冷硬材质。
八、软装家具
- 模块化沙发组合
- 应用位置:大堂吧、社交客厅。
- 材质特性:布艺或半皮材质,色调以灰、奶咖为主,坐感偏厚实,支撑长时间社交。
- 皮质单椅与酒廊椅
- 应用位置:吧台区、壁炉区。
- 特性:造型略带弧线和金属脚,颜色多为酒红、墨绿,呼应“贵族休闲”氛围。
- 茶几、边几与吧台
- 应用位置:会客区、阅读区。
- 特性:石材台面+金属结构,或木面+金属脚,轻盈但质感强。
- 休闲躺椅与泳池躺床
- 应用位置:泳池两侧。
- 特性:防水材质,线条简洁,与泳池整体调性统一。
九、设计总结
CCD 的这套深圳保利瑧誉府会所方案,以古典秩序+Art Deco 雅奢+酒店级配套三重逻辑,打造出一个具有强辨识度的高端社区会所:
- 在空间上通过高柱廊、中轴对称、黑白拼花等手法构建“都市殿堂”的仪式感;
- 在材料与色彩上,采取黑白石材、暖金属、温润木饰与深色软装的组合,既有冷静的高级感,又不失生活温度;
- 在功能与体验上,把迎宾、大堂吧、阅读室、活动厅与泳池串成完整的生活动线,让业主在此完成“社交—放松—运动”的一站式体验。
一句话概括: 这是一个以殿堂式空间表达和艺术化细节,呈现现代都会精英生活方式的顶级住宅会所。
![图片[1]-全球设计案例智能库_OJBKAI.COM【CCD】深圳保利瑧誉府会所 | 设计方案+效果图 | PPT(可编辑)+PDF+JPG | 57P-全球设计案例智能库_OJBKAI.COM设计智库](https://ojbkai.com/wp-content/uploads/2025/12/bdef13e11320251217013557-1024x442.png)
![图片[2]-全球设计案例智能库_OJBKAI.COM【CCD】深圳保利瑧誉府会所 | 设计方案+效果图 | PPT(可编辑)+PDF+JPG | 57P-全球设计案例智能库_OJBKAI.COM设计智库](https://ojbkai.com/wp-content/uploads/2025/12/22bacd1e2420251217014457-scaled.jpg)
![图片[3]-全球设计案例智能库_OJBKAI.COM【CCD】深圳保利瑧誉府会所 | 设计方案+效果图 | PPT(可编辑)+PDF+JPG | 57P-全球设计案例智能库_OJBKAI.COM设计智库](https://ojbkai.com/wp-content/uploads/2025/12/ecfe6d75f520251217014457-scaled.jpg)
![图片[4]-全球设计案例智能库_OJBKAI.COM【CCD】深圳保利瑧誉府会所 | 设计方案+效果图 | PPT(可编辑)+PDF+JPG | 57P-全球设计案例智能库_OJBKAI.COM设计智库](https://ojbkai.com/wp-content/uploads/2025/12/fece9dbe7b20251217014458-scaled.jpg)
![图片[5]-全球设计案例智能库_OJBKAI.COM【CCD】深圳保利瑧誉府会所 | 设计方案+效果图 | PPT(可编辑)+PDF+JPG | 57P-全球设计案例智能库_OJBKAI.COM设计智库](https://ojbkai.com/wp-content/uploads/2025/12/dfdf1ffeac20251217014457-scaled.jpg)
![图片[6]-全球设计案例智能库_OJBKAI.COM【CCD】深圳保利瑧誉府会所 | 设计方案+效果图 | PPT(可编辑)+PDF+JPG | 57P-全球设计案例智能库_OJBKAI.COM设计智库](https://ojbkai.com/wp-content/uploads/2025/12/c04917249120251217014454-scaled.jpg)
![图片[7]-全球设计案例智能库_OJBKAI.COM【CCD】深圳保利瑧誉府会所 | 设计方案+效果图 | PPT(可编辑)+PDF+JPG | 57P-全球设计案例智能库_OJBKAI.COM设计智库](https://ojbkai.com/wp-content/uploads/2025/12/ccac3ad81720251217014454-scaled.jpg)
![图片[8]-全球设计案例智能库_OJBKAI.COM【CCD】深圳保利瑧誉府会所 | 设计方案+效果图 | PPT(可编辑)+PDF+JPG | 57P-全球设计案例智能库_OJBKAI.COM设计智库](https://ojbkai.com/wp-content/uploads/2025/12/72ce152d5620251217014454-scaled.jpg)
![图片[9]-全球设计案例智能库_OJBKAI.COM【CCD】深圳保利瑧誉府会所 | 设计方案+效果图 | PPT(可编辑)+PDF+JPG | 57P-全球设计案例智能库_OJBKAI.COM设计智库](https://ojbkai.com/wp-content/uploads/2025/12/c97ba7392b20251217014456-scaled.jpg)
![图片[10]-全球设计案例智能库_OJBKAI.COM【CCD】深圳保利瑧誉府会所 | 设计方案+效果图 | PPT(可编辑)+PDF+JPG | 57P-全球设计案例智能库_OJBKAI.COM设计智库](https://ojbkai.com/wp-content/uploads/2025/12/b38de84f2c20251217014456-scaled.jpg)
![图片[11]-全球设计案例智能库_OJBKAI.COM【CCD】深圳保利瑧誉府会所 | 设计方案+效果图 | PPT(可编辑)+PDF+JPG | 57P-全球设计案例智能库_OJBKAI.COM设计智库](https://ojbkai.com/wp-content/uploads/2025/12/35d4039ab120251217014458-scaled.jpg)
![图片[12]-全球设计案例智能库_OJBKAI.COM【CCD】深圳保利瑧誉府会所 | 设计方案+效果图 | PPT(可编辑)+PDF+JPG | 57P-全球设计案例智能库_OJBKAI.COM设计智库](https://ojbkai.com/wp-content/uploads/2025/12/6cee40814020251217014457-scaled.jpg)
![图片[13]-全球设计案例智能库_OJBKAI.COM【CCD】深圳保利瑧誉府会所 | 设计方案+效果图 | PPT(可编辑)+PDF+JPG | 57P-全球设计案例智能库_OJBKAI.COM设计智库](https://ojbkai.com/wp-content/uploads/2025/12/6359d1e2f720251217014457-scaled.jpg)
![图片[14]-全球设计案例智能库_OJBKAI.COM【CCD】深圳保利瑧誉府会所 | 设计方案+效果图 | PPT(可编辑)+PDF+JPG | 57P-全球设计案例智能库_OJBKAI.COM设计智库](https://ojbkai.com/wp-content/uploads/2025/12/c24f246bd020251217014454-scaled.jpg)
![图片[15]-全球设计案例智能库_OJBKAI.COM【CCD】深圳保利瑧誉府会所 | 设计方案+效果图 | PPT(可编辑)+PDF+JPG | 57P-全球设计案例智能库_OJBKAI.COM设计智库](https://ojbkai.com/wp-content/uploads/2025/12/3ee2eeb62920251217014458-scaled.jpg)
![图片[16]-全球设计案例智能库_OJBKAI.COM【CCD】深圳保利瑧誉府会所 | 设计方案+效果图 | PPT(可编辑)+PDF+JPG | 57P-全球设计案例智能库_OJBKAI.COM设计智库](https://ojbkai.com/wp-content/uploads/2025/12/0fd31801c420251217014458-scaled.jpg)
![图片[17]-全球设计案例智能库_OJBKAI.COM【CCD】深圳保利瑧誉府会所 | 设计方案+效果图 | PPT(可编辑)+PDF+JPG | 57P-全球设计案例智能库_OJBKAI.COM设计智库](https://ojbkai.com/wp-content/uploads/2025/12/5b76910cff20251217014457-scaled.jpg)
![图片[18]-全球设计案例智能库_OJBKAI.COM【CCD】深圳保利瑧誉府会所 | 设计方案+效果图 | PPT(可编辑)+PDF+JPG | 57P-全球设计案例智能库_OJBKAI.COM设计智库](https://ojbkai.com/wp-content/uploads/2025/12/175776803220251217014537-scaled.jpg)
![图片[19]-全球设计案例智能库_OJBKAI.COM【CCD】深圳保利瑧誉府会所 | 设计方案+效果图 | PPT(可编辑)+PDF+JPG | 57P-全球设计案例智能库_OJBKAI.COM设计智库](https://ojbkai.com/wp-content/uploads/2025/12/1be171bbbb20251217014537-scaled.jpg)
![图片[20]-全球设计案例智能库_OJBKAI.COM【CCD】深圳保利瑧誉府会所 | 设计方案+效果图 | PPT(可编辑)+PDF+JPG | 57P-全球设计案例智能库_OJBKAI.COM设计智库](https://ojbkai.com/wp-content/uploads/2025/12/54b31421f820251217014539-scaled.jpg)
![图片[21]-全球设计案例智能库_OJBKAI.COM【CCD】深圳保利瑧誉府会所 | 设计方案+效果图 | PPT(可编辑)+PDF+JPG | 57P-全球设计案例智能库_OJBKAI.COM设计智库](https://ojbkai.com/wp-content/uploads/2025/12/ff7bb509c120251217014539-scaled.jpg)
![图片[22]-全球设计案例智能库_OJBKAI.COM【CCD】深圳保利瑧誉府会所 | 设计方案+效果图 | PPT(可编辑)+PDF+JPG | 57P-全球设计案例智能库_OJBKAI.COM设计智库](https://ojbkai.com/wp-content/uploads/2025/12/9ef60f3bdd20251217014540-scaled.jpg)
![图片[23]-全球设计案例智能库_OJBKAI.COM【CCD】深圳保利瑧誉府会所 | 设计方案+效果图 | PPT(可编辑)+PDF+JPG | 57P-全球设计案例智能库_OJBKAI.COM设计智库](https://ojbkai.com/wp-content/uploads/2025/12/0dd45a085120251217014540-scaled.jpg)
![图片[24]-全球设计案例智能库_OJBKAI.COM【CCD】深圳保利瑧誉府会所 | 设计方案+效果图 | PPT(可编辑)+PDF+JPG | 57P-全球设计案例智能库_OJBKAI.COM设计智库](https://ojbkai.com/wp-content/uploads/2025/12/6c8c02996c20251217014541-scaled.jpg)
![图片[25]-全球设计案例智能库_OJBKAI.COM【CCD】深圳保利瑧誉府会所 | 设计方案+效果图 | PPT(可编辑)+PDF+JPG | 57P-全球设计案例智能库_OJBKAI.COM设计智库](https://ojbkai.com/wp-content/uploads/2025/12/963f75dd9d20251217014541-scaled.jpg)
![图片[26]-全球设计案例智能库_OJBKAI.COM【CCD】深圳保利瑧誉府会所 | 设计方案+效果图 | PPT(可编辑)+PDF+JPG | 57P-全球设计案例智能库_OJBKAI.COM设计智库](https://ojbkai.com/wp-content/uploads/2025/12/a137ce374f20251217014541-scaled.jpg)
![图片[27]-全球设计案例智能库_OJBKAI.COM【CCD】深圳保利瑧誉府会所 | 设计方案+效果图 | PPT(可编辑)+PDF+JPG | 57P-全球设计案例智能库_OJBKAI.COM设计智库](https://ojbkai.com/wp-content/uploads/2025/12/fb07ff2d1520251217014542-scaled.jpg)
![图片[28]-全球设计案例智能库_OJBKAI.COM【CCD】深圳保利瑧誉府会所 | 设计方案+效果图 | PPT(可编辑)+PDF+JPG | 57P-全球设计案例智能库_OJBKAI.COM设计智库](https://ojbkai.com/wp-content/uploads/2025/12/dee24e564120251217014542-scaled.jpg)
![图片[29]-全球设计案例智能库_OJBKAI.COM【CCD】深圳保利瑧誉府会所 | 设计方案+效果图 | PPT(可编辑)+PDF+JPG | 57P-全球设计案例智能库_OJBKAI.COM设计智库](https://ojbkai.com/wp-content/uploads/2025/12/f36cef8acd20251217014541-scaled.jpg)
![图片[30]-全球设计案例智能库_OJBKAI.COM【CCD】深圳保利瑧誉府会所 | 设计方案+效果图 | PPT(可编辑)+PDF+JPG | 57P-全球设计案例智能库_OJBKAI.COM设计智库](https://ojbkai.com/wp-content/uploads/2025/12/e30377194320251217014542-scaled.jpg)
![图片[31]-全球设计案例智能库_OJBKAI.COM【CCD】深圳保利瑧誉府会所 | 设计方案+效果图 | PPT(可编辑)+PDF+JPG | 57P-全球设计案例智能库_OJBKAI.COM设计智库](https://ojbkai.com/wp-content/uploads/2025/12/c0a21c8dd220251217014543-scaled.jpg)
![图片[32]-全球设计案例智能库_OJBKAI.COM【CCD】深圳保利瑧誉府会所 | 设计方案+效果图 | PPT(可编辑)+PDF+JPG | 57P-全球设计案例智能库_OJBKAI.COM设计智库](https://ojbkai.com/wp-content/uploads/2025/12/f97798d56a20251217014540-scaled.jpg)
![图片[33]-全球设计案例智能库_OJBKAI.COM【CCD】深圳保利瑧誉府会所 | 设计方案+效果图 | PPT(可编辑)+PDF+JPG | 57P-全球设计案例智能库_OJBKAI.COM设计智库](https://ojbkai.com/wp-content/uploads/2025/12/20f5d680f420251217014542-scaled.jpg)
![图片[34]-全球设计案例智能库_OJBKAI.COM【CCD】深圳保利瑧誉府会所 | 设计方案+效果图 | PPT(可编辑)+PDF+JPG | 57P-全球设计案例智能库_OJBKAI.COM设计智库](https://ojbkai.com/wp-content/uploads/2025/12/6a40d5433720251217014604-scaled.jpg)
![图片[35]-全球设计案例智能库_OJBKAI.COM【CCD】深圳保利瑧誉府会所 | 设计方案+效果图 | PPT(可编辑)+PDF+JPG | 57P-全球设计案例智能库_OJBKAI.COM设计智库](https://ojbkai.com/wp-content/uploads/2025/12/e50b04c3ce20251217014604-scaled.jpg)
![图片[36]-全球设计案例智能库_OJBKAI.COM【CCD】深圳保利瑧誉府会所 | 设计方案+效果图 | PPT(可编辑)+PDF+JPG | 57P-全球设计案例智能库_OJBKAI.COM设计智库](https://ojbkai.com/wp-content/uploads/2025/12/f1f76879b020251217014604-scaled.jpg)
![图片[37]-全球设计案例智能库_OJBKAI.COM【CCD】深圳保利瑧誉府会所 | 设计方案+效果图 | PPT(可编辑)+PDF+JPG | 57P-全球设计案例智能库_OJBKAI.COM设计智库](https://ojbkai.com/wp-content/uploads/2025/12/bc8239bfd520251217014604-scaled.jpg)
![图片[38]-全球设计案例智能库_OJBKAI.COM【CCD】深圳保利瑧誉府会所 | 设计方案+效果图 | PPT(可编辑)+PDF+JPG | 57P-全球设计案例智能库_OJBKAI.COM设计智库](https://ojbkai.com/wp-content/uploads/2025/12/05f72cb6b720251217014605-scaled.jpg)
![图片[39]-全球设计案例智能库_OJBKAI.COM【CCD】深圳保利瑧誉府会所 | 设计方案+效果图 | PPT(可编辑)+PDF+JPG | 57P-全球设计案例智能库_OJBKAI.COM设计智库](https://ojbkai.com/wp-content/uploads/2025/12/eb532ca01d20251217014605-scaled.jpg)
![图片[40]-全球设计案例智能库_OJBKAI.COM【CCD】深圳保利瑧誉府会所 | 设计方案+效果图 | PPT(可编辑)+PDF+JPG | 57P-全球设计案例智能库_OJBKAI.COM设计智库](https://ojbkai.com/wp-content/uploads/2025/12/9797bbf3f320251217014605-scaled.jpg)
深圳保利瑧誉府会所
一、主题设计思想|「都会古典回廊 · 当代礼序重构」
以“长回廊与穹顶”的古典秩序为核心母题,把拱、券、柱、檐与当代克制的材料语言重组:外部门廊建立“到达—过渡—进入”的三段仪式;内部以连续穹顶与轴线导引形成“城市会客厅”,将茶歇、会谈、泳池康体等功能串联为一条叙事性的社交动线,既有庄重气场,又具日常可用的亲和度。
二、设计风格
- 风格定位:新古典主义(比例/对称/拱券/柱式)+ 当代极简(薄边金属、纯净留白、线性光)。
- 气质关键词:秩序、对称、轴线、穹顶、材质克制、贵而不艳。
- 品牌表达:以“回廊与穹顶”作为识别语汇,在不同功能空间保持统一的几何母题与节奏。
三、空间布局(名称 + 应用方式 + 功能特性)
- 前厅门廊|下沉式踏步+高耸门套|压—放节奏,制造到达仪式与静音缓冲。
- 主廊/中庭|连续穹顶+轴线对称+端景装置|最强识别面,承担动线分发与视觉锚点。
- 接待/等候区|围合沙发岛+壁炉/艺术背景|半私密洽谈,声学围合提升驻留舒适度。
- 会客/雪茄或红酒吧|吧台中轴+分区沙发卡座|弱电与排风独立,满足夜间社交与高净值圈层。
- 私宴包间/西餐轻食|可变隔断+窗侧卡座|承接家庭/朋友宴请与小型活动。
- 康体泳池|沿窗长向布置+顶面拱形采光槽|引景入内,强调舒缓、仪式与私密。
- 辅助用房|备餐/储藏/清洁间隐藏于柱廊之后|前后台完全剥离,保障运营效率。
- 机动场地|回廊节点留空+移动家具|可临时切换为展陈/发布/小型沙龙。
四、色彩搭配(颜色名称 + 应用位置 + 色彩特征 + 搭配作用)
- 温白/雾灰|墙顶、穹顶面|高明度低饱和|扩大空间感,承托光影与线条。
- 银灰/浅米石纹|柱身、檐口、地面大面石材|中明度、肌理细腻|稳定基调、延续秩序。
- 墨黑/深炭灰|地面黑白棋盘格、线框、门套阴影位|强对比|强化轴线、导流视线。
- 香槟金/青古铜|灯具、栏杆扶手、装置边框|低饱和金属光泽|点亮焦点、提升精致度。
- 酒红/赭棕(点缀)|单椅、抱枕、软包面|暖色注入|打破冷感,营造会客的亲密度。
- 墨绿/橄榄绿(点缀)|绿植、少量织物|与自然对话|缓解石材冷峻,呼应康体区的松弛。
五、材质分析(名称 + 应用位置 + 材质特性)
- 天然大理石(浅米/灰白、黑金或波纹)|地面、基座、台面|高硬度与反射性,耐久、易维护,适合高人流。
- 石材/精致抹灰檐口|柱头、梁檐、穹顶转折|可塑性强,塑造古典比例与光影层次。
- 金属(香槟金/古铜拉丝)|灯具、格栅、装置框|强度高、薄边精致、弱反射形成微光晕。
- 木饰面(深胡桃/浅橡)|局部墙板、吧台、家具外包|温润触感与声学吸收,平衡冷硬。
- 织物软包(亚麻纹/植绒)|会客背景、声学面|吸声降噪,提升停留舒适。
- 马赛克/艺术玻璃|端景墙、泳池端头|细密反光颗粒,形成艺术焦点与水体联想。
- 地毯(低反差几何纹)|会客与沙龙区|分区导向、吸音减噪,提高脚感与温度。
六、灯光设计(灯光类型 + 应用位置 + 功能特性)
- 嵌入线性洗天光|穹顶转折/檐口内侧|均匀提亮拱面,强调体量与序列节奏。
- 可调角射灯|端景装置、壁饰、立柱凹位|精确显色,形成画面层次与视觉锚点。
- 壁灯/枝形吊灯|门廊、回廊节点、会客区上方|纵向定标,建立古典礼仪与亲密氛围。
- 低位导光/踢脚灯|柱廊基座、楼梯踏步|安全引导,塑造夜景“浮光”效果。
- 泳池防眩线性灯|天花纵向槽、池壁内嵌|均匀无频闪,避免水面眩光,强调平静水纹。
- 场景化控光|分区回路+色温3000–3500K为主,局部冷暖混搭|会议、沙龙、展陈一键切换。
七、艺术陈设装饰元素(名称 + 应用位置 + 特性/作用)
- 端景艺术墙(抽象石艺/艺术玻璃)|主轴尽端|构成叙事高潮,增强品牌记忆。
- 古典雕塑/胸像|回廊壁龛/角部节点|历史感与人文气息的显性表达。
- 金属格栅/屏风|入口、吧台后区|半透围合,隐藏设备口,导向视线。
- 软装画作(几何/折衷主义)|会客与餐饮区|与古典结构形成张力,传达“新旧并置”。
- 花艺与绿植(深绿系)|前台、角几、泳池端部|季节更新,软化石材冷感。
八、软装家具(名称 + 应用位置 + 材质特性)
- 围合式沙发岛|中庭/会客|织物+皮革拼接,中高靠背、回弹适中,形成社交半私密。
- 单人贵妃椅/翼背椅|壁龛/窗侧|包裹性强,织物耐磨度高,呼应古典休憩姿态。
- 棋盘格地毯/小圆几|会谈区|黑白几何强化秩序,小圆几提升灵活摆位效率。
- 吧台高脚椅|酒吧/雪茄区|皮面与木脚,便于清洁与高频使用。
- 泳池躺椅与巾车|康体区|耐潮防滑面料与金属骨架,满足湿区维护需求。
九、设计总结
- 秩序与气场:穹顶、拱券与柱式的连续性建立强烈的轴线礼序,公共空间拥有“迎宾—驻留—展陈—社交”的完整叙事。
- 当代克制:色彩以中性灰白与石材肌理为基底,金属微光点睛,避免过度装饰带来的视觉疲劳。
- 运营友好:耐久石材+可维护金属+可替换软装画作的组合,在保证高级感的同时降低生命周期成本。
- 多场景可变:家具模数化与灯光场景化控制,使回廊空间可以在“展陈—沙龙—发布—酒会”间快速切换。
- 感官舒适:声学软包、地毯分区与低位导光共同作用,抑制回响与眩光,提升谈话与休憩质量。
可优化建议 1)在长轴序列中加入1–2处节奏“停顿”(小型壁龛书吧/茶水岛),增强慢行体验与社交停留率; 2)泳池与会客空间建议引入可编程动态光(微幅亮度/色温呼吸),与日照变化联动; 3)端景艺术建议采用可更换策展系统(磁吸/导轨),保持空间在社交媒体中的持续新鲜度; 4)关键转角增设隐蔽新风补风口与除雾系统,在湿区与酒吧区保持长期的舒适度与清透观感。
整体而言,本会所以古典序列承载当代生活方式:以拱、券、穹顶与棋盘格作为文化记忆点,再以克制材质与轻盈金属完成现代化落地,实现“高识别 + 高运营效率 + 高舒适度”的复合型城市会所范式。
![图片[41]-全球设计案例智能库_OJBKAI.COM【CCD】深圳保利瑧誉府会所 | 设计方案+效果图 | PPT(可编辑)+PDF+JPG | 57P-全球设计案例智能库_OJBKAI.COM设计智库](https://ojbkai.com/wp-content/uploads/2025/12/8dc6a6981b20251217014138-1024x337.png)
![图片[42]-全球设计案例智能库_OJBKAI.COM【CCD】深圳保利瑧誉府会所 | 设计方案+效果图 | PPT(可编辑)+PDF+JPG | 57P-全球设计案例智能库_OJBKAI.COM设计智库](https://ojbkai.com/wp-content/uploads/2025/12/6a68f1ec8b20251217014912.jpg)
![图片[43]-全球设计案例智能库_OJBKAI.COM【CCD】深圳保利瑧誉府会所 | 设计方案+效果图 | PPT(可编辑)+PDF+JPG | 57P-全球设计案例智能库_OJBKAI.COM设计智库](https://ojbkai.com/wp-content/uploads/2025/12/95da6d12ef20251217014912.jpg)
![图片[44]-全球设计案例智能库_OJBKAI.COM【CCD】深圳保利瑧誉府会所 | 设计方案+效果图 | PPT(可编辑)+PDF+JPG | 57P-全球设计案例智能库_OJBKAI.COM设计智库](https://ojbkai.com/wp-content/uploads/2025/12/c8a6abdede20251217014912.jpg)
![图片[45]-全球设计案例智能库_OJBKAI.COM【CCD】深圳保利瑧誉府会所 | 设计方案+效果图 | PPT(可编辑)+PDF+JPG | 57P-全球设计案例智能库_OJBKAI.COM设计智库](https://ojbkai.com/wp-content/uploads/2025/12/aeee97ce3320251217014913.jpg)
![图片[46]-全球设计案例智能库_OJBKAI.COM【CCD】深圳保利瑧誉府会所 | 设计方案+效果图 | PPT(可编辑)+PDF+JPG | 57P-全球设计案例智能库_OJBKAI.COM设计智库](https://ojbkai.com/wp-content/uploads/2025/12/df6133029520251217014912.jpg)
![图片[47]-全球设计案例智能库_OJBKAI.COM【CCD】深圳保利瑧誉府会所 | 设计方案+效果图 | PPT(可编辑)+PDF+JPG | 57P-全球设计案例智能库_OJBKAI.COM设计智库](https://ojbkai.com/wp-content/uploads/2025/12/0b5bd7fb3f20251217014913.jpg)
![图片[48]-全球设计案例智能库_OJBKAI.COM【CCD】深圳保利瑧誉府会所 | 设计方案+效果图 | PPT(可编辑)+PDF+JPG | 57P-全球设计案例智能库_OJBKAI.COM设计智库](https://ojbkai.com/wp-content/uploads/2025/12/2e544c9d2a20251217014913.jpg)
![图片[49]-全球设计案例智能库_OJBKAI.COM【CCD】深圳保利瑧誉府会所 | 设计方案+效果图 | PPT(可编辑)+PDF+JPG | 57P-全球设计案例智能库_OJBKAI.COM设计智库](https://ojbkai.com/wp-content/uploads/2025/12/a7c2711d6e20251217014913.jpg)
![图片[50]-全球设计案例智能库_OJBKAI.COM【CCD】深圳保利瑧誉府会所 | 设计方案+效果图 | PPT(可编辑)+PDF+JPG | 57P-全球设计案例智能库_OJBKAI.COM设计智库](https://ojbkai.com/wp-content/uploads/2025/12/db745ae1b520251217014913.jpg)
![图片[51]-全球设计案例智能库_OJBKAI.COM【CCD】深圳保利瑧誉府会所 | 设计方案+效果图 | PPT(可编辑)+PDF+JPG | 57P-全球设计案例智能库_OJBKAI.COM设计智库](https://ojbkai.com/wp-content/uploads/2025/12/888de8300720251217014913.jpg)
![图片[52]-全球设计案例智能库_OJBKAI.COM【CCD】深圳保利瑧誉府会所 | 设计方案+效果图 | PPT(可编辑)+PDF+JPG | 57P-全球设计案例智能库_OJBKAI.COM设计智库](https://ojbkai.com/wp-content/uploads/2025/12/399750ebd620251217014914.jpg)
![图片[53]-全球设计案例智能库_OJBKAI.COM【CCD】深圳保利瑧誉府会所 | 设计方案+效果图 | PPT(可编辑)+PDF+JPG | 57P-全球设计案例智能库_OJBKAI.COM设计智库](https://ojbkai.com/wp-content/uploads/2025/12/6ac1b6ea9a20251217014913.jpg)
![图片[54]-全球设计案例智能库_OJBKAI.COM【CCD】深圳保利瑧誉府会所 | 设计方案+效果图 | PPT(可编辑)+PDF+JPG | 57P-全球设计案例智能库_OJBKAI.COM设计智库](https://ojbkai.com/wp-content/uploads/2025/12/9ae2f69a3420251217014914.jpg)
![图片[55]-全球设计案例智能库_OJBKAI.COM【CCD】深圳保利瑧誉府会所 | 设计方案+效果图 | PPT(可编辑)+PDF+JPG | 57P-全球设计案例智能库_OJBKAI.COM设计智库](https://ojbkai.com/wp-content/uploads/2025/12/bb624892a720251217014914.jpg)
![图片[56]-全球设计案例智能库_OJBKAI.COM【CCD】深圳保利瑧誉府会所 | 设计方案+效果图 | PPT(可编辑)+PDF+JPG | 57P-全球设计案例智能库_OJBKAI.COM设计智库](https://ojbkai.com/wp-content/uploads/2025/12/2e4ba6daaf20251217014915.jpg)
![图片[57]-全球设计案例智能库_OJBKAI.COM【CCD】深圳保利瑧誉府会所 | 设计方案+效果图 | PPT(可编辑)+PDF+JPG | 57P-全球设计案例智能库_OJBKAI.COM设计智库](https://ojbkai.com/wp-content/uploads/2025/12/b91dfbaf0920251217014913.jpg)
![图片[58]-全球设计案例智能库_OJBKAI.COM【CCD】深圳保利瑧誉府会所 | 设计方案+效果图 | PPT(可编辑)+PDF+JPG | 57P-全球设计案例智能库_OJBKAI.COM设计智库](https://ojbkai.com/wp-content/uploads/2025/12/c2b71921ae20251217014913.jpg)
![图片[59]-全球设计案例智能库_OJBKAI.COM【CCD】深圳保利瑧誉府会所 | 设计方案+效果图 | PPT(可编辑)+PDF+JPG | 57P-全球设计案例智能库_OJBKAI.COM设计智库](https://ojbkai.com/wp-content/uploads/2025/12/02582d71d720251217014913.jpg)
© 版权声明
网站声明 :本站属于分享网站,仅用于观看哦,并非完全原创,如有侵犯到您的权益,请告知我们,会立刻下架 - 设计智库 邮箱:sucai1588@163.com
THE END



























暂无评论内容