【CCD】深圳碧海玖号花园项目深化设计方案文本册
一、主题设计思想
“海湾艺境·城市度假客厅” 整套设计以滨海住区为背景,将会所/公区打造成一个同时具备“城市酒店大堂+海边度假会客厅”的复合空间:前场水景与高挑圆厅营造归家仪式,中段廊道和内院形成“穿越花园”的过渡,后场餐吧、会客、室外平台则呈现一种慢节奏、可停留、可社交的度假生活方式。
二、设计风格
- 整体风格:当代极简度假风,融合少量都会轻奢元素。
- 造型语言:
- 顶面多用大圆环、椭圆和柔和倒角,强调“云朵”“波浪”般的轻盈感。
- 立面以整块石材面和竖向金属线条为主,配合整排玻璃幕墙,营造通透挺拔的比例。
- 气质:既有城市高端住宅的精致克制,又带有度假酒店的放松与亲和,适合家庭、亲子、商务多种客群。
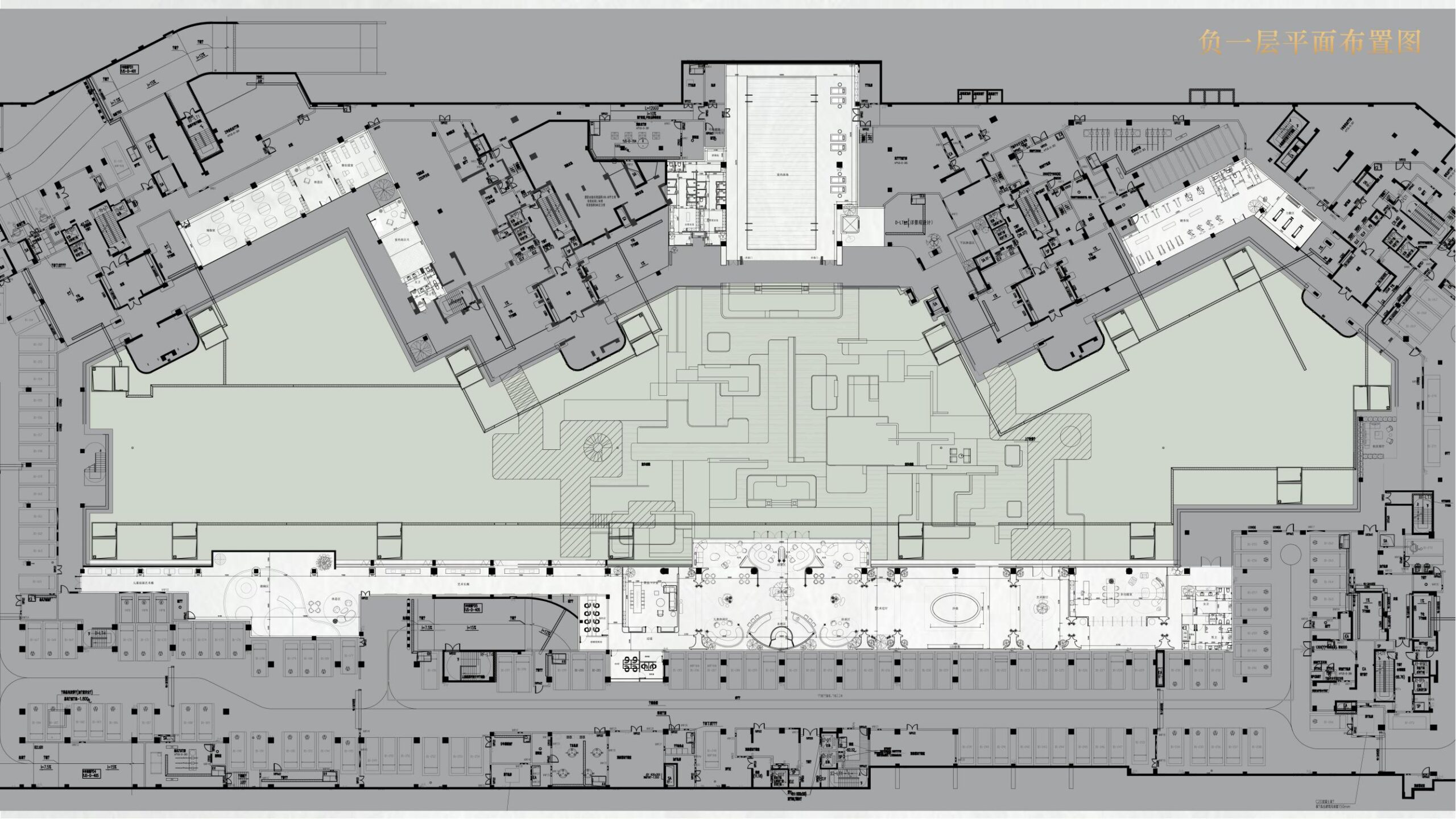
三、空间布局
- 前场入口及下沉水景区
- 应用方式:建筑前场布置镜面水景与平台台阶,形成“水中到岸”的缓冲界面。
- 功能特性:增强仪式感与项目记忆点,弱化从城市道路进入的突兀感。
- 首层大堂圆厅
- 应用方式:双层挑空空间,中央圆形吊顶下设置花艺台或接待台,四周为柱廊与落地玻璃。
- 功能特性:作为归家与来访第一接触界面,承担形象展示、等候与初次洽谈。
- 景观廊道与内庭院
- 应用方式:由大堂延伸出纵深走廊,一侧为玻璃幕墙面向绿化庭院,局部设置艺术装置与休息坐凳。
- 功能特性:形成“从城市到花园”的过渡动线,引导人流向后场社交及功能区。
- 会客沙龙区 / 咖啡吧
- 应用方式:以长形吧台为中心,两侧布置沙发、单椅与小圆桌,面向室外景观平台。
- 功能特性:日间可作为咖啡轻餐、洽谈空间,夜间可转换为小型酒吧或住户社交场所。
- 餐饮及休闲区
- 应用方式:中部为圆形或椭圆形主位,外围环布散座与卡座,并与室外交往平台连通。
- 功能特性:承载早餐、下午茶、宴会等多场景活动,是公区氛围的“情绪中心”。
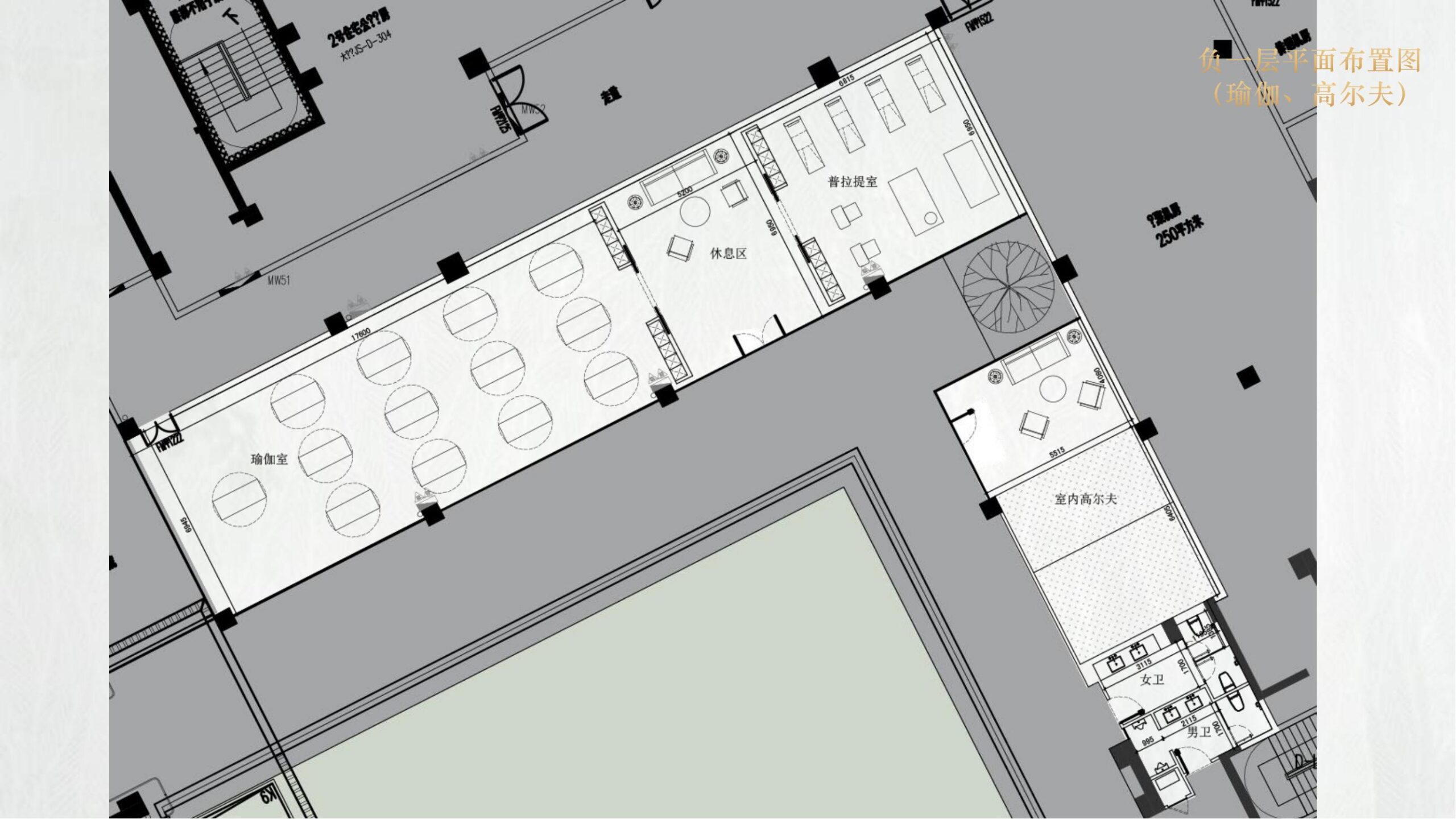
- 功能配套区(儿童、运动、办公等)
- 从平面可见:沿长条形轴线分布多组功能房间,如儿童活动、健身、阅读/会客室等,通过廊道和景观节点串联。
- 功能特性:实现全龄化服务,延伸社区运营可能。
四、色彩搭配
- 米白 / 象牙白 + 顶面与大面积墙面 + 明度高、饱和度低 + 作为整体基底,提升通透感,让自然光成为主角。
- 浅暖米黄 / 香槟米色 + 柱面、石材墙、部分硬包 + 色温偏暖、质感安静 + 加强度假气氛,避免冷感。
- 浅木色 + 柜体、墙板、门套、部分天花格栅 + 纹理柔和、亲和力强 + 让空间更生活化,缓解石材的冷硬。
- 深咖 / 深灰色 + 地面局部、金属构件、吧台下沿 + 压低重心、增强稳重感 + 与浅色墙顶形成对比,使空间更有层次。
- 点缀色(淡绿、粉橙、暖金) + 抱枕、挂画、花艺、餐椅局部 + 低饱和、柔和 + 提供视觉焦点,与室外绿植呼应。
五、材质分析
- 大板石材(浅米色) + 大堂地面、圆厅墙面 + 纹理细腻、反射适中,凸显整体高级感并利于维护。
- 木饰面 / 木格栅 + 廊道墙面、顶面边缘、柜体 + 自然纹理产生温度,格栅在视觉上拉长空间方向感。
- 玻璃幕墙 + 大堂两侧、会客与餐饮区外立面 + 高透光、室内外相互借景,强化与海湾、绿植的联系。
- 金属线条(香槟金) + 柱边收口、吊顶轮廓、吧台装饰 + 强调结构节点,增加精致度与现代感。
- 织物软包 + 部分墙面、卡座背景 + 具吸音与触感优势,提升舒适度并柔化硬质材料。
- 人造石或天然石台面 + 吧台、接待台、洗手台 + 耐磨、耐污,用于高频使用区域。
###六、灯光设计
- 大型环形主灯 + 大堂圆厅顶部 + 形成视觉焦点与仪式光环,强调空间中心性。
- 线性灯带 + 顶面凹槽、廊道格栅、吧台下沿 + 提供均匀基础照明,同时描绘空间轮廓,使顶面显得更轻。
- 筒灯 / 射灯 + 走道、艺术装置上方、局部桌面 + 用于重点照明与形成光斑节奏,引导视线。
- 壁灯 + 柱间、局部走廊节点 + 提供柔和侧光,增强空间纵深与亲切度。
- 自然光 + 多处落地窗、内庭院 + 白天作为主光源,营造“清晨到黄昏”的光影变化,与度假场景契合。
七、艺术陈设装饰元素
- 大幅摄影/抽象画作 + 大堂背景、廊道端景 + 主题多与海岸、生活方式相关,传达项目气质与品牌故事。
- 中央花艺与绿植装置 + 圆厅中心、廊道节点、室内庭院 + 形成视觉“呼吸点”,连接室外景观。
- 雕塑小品 + 走廊转角、庭院、接待台附近 + 体量不大但形体简洁,作为聚焦点提升艺术氛围。
- 书籍与陈列器皿 + 会客与餐饮区的层架上 + 渲染“有人在此生活”的氛围,减弱商业感。
###八、软装家具
- 模块化布艺沙发 + 会客沙龙区、大堂休息区 + 浅色织物、坐感柔软,可灵活组合成不同围合方式。
- 单椅与小圆几 + 靠窗位、边角洽谈位 + 皮面或布面配木/金属脚,体量轻盈,适合短暂停留与一对一交流。
- 卡座沙发 + 餐饮区周边 + 软包舒适、靠背略高,增加包裹感与私密性。
- 餐椅 / 吧椅 + 餐饮区与吧台区 + 木质或金属框架搭配皮革坐面,耐用且具酒店级气质。
- 休闲躺椅 + 室外交往平台、靠窗景观区 + 布艺或藤编材质,呼应度假氛围,鼓励长时间停留。
九、设计总结
- 本案从规划与平面到室内营造都围绕“海湾度假+城市居住”的主线:前场水景 + 圆厅大堂 + 景观廊道 + 会客餐饮+户外平台,把公区做成一条情绪渐进的体验路径。
- 色彩与材质以浅色石材、木饰面和大面积玻璃为主,辅以少量金属与织物软包,既保证项目调性的高级感,又避免过度奢华和距离感。
- 灯光策略强调“自然光为主、人造光辅助轮廓”的思路,白天明亮通透,夜晚通过环形灯带与线光勾勒空间,使公区兼具日夜两种魅力。
- 家具与陈设尽量生活化、酒店化,而非传统营销中心的“展厅感”,更利于后续作为真正住户会所长期使用。
整体来看,这套设计是一套“从策划到室内一体化”的社区会所方案,非常适合作为滨海或城市河岸项目的参考模板:先定生活方式,再反推空间结构、动线和细节,而不是反过来。
![图片[1]-全球设计案例智能库_OJBKAI.COM【CCD】深圳碧海玖号花园售楼中心+会所项目深化设计方案文本册 | PPT(可编辑)+PDF+JPG | 70P | 276M-全球设计案例智能库_OJBKAI.COM设计智库](https://ojbkai.com/wp-content/uploads/2025/12/d732ea099c20251217015725-1024x395.png)
![图片[2]-全球设计案例智能库_OJBKAI.COM【CCD】深圳碧海玖号花园售楼中心+会所项目深化设计方案文本册 | PPT(可编辑)+PDF+JPG | 70P | 276M-全球设计案例智能库_OJBKAI.COM设计智库](https://ojbkai.com/wp-content/uploads/2025/12/c73224a72220251217015856-scaled.jpg)
![图片[3]-全球设计案例智能库_OJBKAI.COM【CCD】深圳碧海玖号花园售楼中心+会所项目深化设计方案文本册 | PPT(可编辑)+PDF+JPG | 70P | 276M-全球设计案例智能库_OJBKAI.COM设计智库](https://ojbkai.com/wp-content/uploads/2025/12/a591be748b20251217015856-scaled.jpg)
![图片[4]-全球设计案例智能库_OJBKAI.COM【CCD】深圳碧海玖号花园售楼中心+会所项目深化设计方案文本册 | PPT(可编辑)+PDF+JPG | 70P | 276M-全球设计案例智能库_OJBKAI.COM设计智库](https://ojbkai.com/wp-content/uploads/2025/12/336477c66420251217015858-scaled.jpg)
![图片[5]-全球设计案例智能库_OJBKAI.COM【CCD】深圳碧海玖号花园售楼中心+会所项目深化设计方案文本册 | PPT(可编辑)+PDF+JPG | 70P | 276M-全球设计案例智能库_OJBKAI.COM设计智库](https://ojbkai.com/wp-content/uploads/2025/12/baebbfd2ab20251217015859-scaled.jpg)
![图片[6]-全球设计案例智能库_OJBKAI.COM【CCD】深圳碧海玖号花园售楼中心+会所项目深化设计方案文本册 | PPT(可编辑)+PDF+JPG | 70P | 276M-全球设计案例智能库_OJBKAI.COM设计智库](https://ojbkai.com/wp-content/uploads/2025/12/dbf0cacab420251217015857-scaled.jpg)
![图片[7]-全球设计案例智能库_OJBKAI.COM【CCD】深圳碧海玖号花园售楼中心+会所项目深化设计方案文本册 | PPT(可编辑)+PDF+JPG | 70P | 276M-全球设计案例智能库_OJBKAI.COM设计智库](https://ojbkai.com/wp-content/uploads/2025/12/2958bbe64420251217015900-scaled.jpg)
![图片[8]-全球设计案例智能库_OJBKAI.COM【CCD】深圳碧海玖号花园售楼中心+会所项目深化设计方案文本册 | PPT(可编辑)+PDF+JPG | 70P | 276M-全球设计案例智能库_OJBKAI.COM设计智库](https://ojbkai.com/wp-content/uploads/2025/12/fb8fc323e120251217015859-scaled.jpg)
![图片[9]-全球设计案例智能库_OJBKAI.COM【CCD】深圳碧海玖号花园售楼中心+会所项目深化设计方案文本册 | PPT(可编辑)+PDF+JPG | 70P | 276M-全球设计案例智能库_OJBKAI.COM设计智库](https://ojbkai.com/wp-content/uploads/2025/12/0cdd0f55e920251217015859-scaled.jpg)
![图片[10]-全球设计案例智能库_OJBKAI.COM【CCD】深圳碧海玖号花园售楼中心+会所项目深化设计方案文本册 | PPT(可编辑)+PDF+JPG | 70P | 276M-全球设计案例智能库_OJBKAI.COM设计智库](https://ojbkai.com/wp-content/uploads/2025/12/d5b547f89c20251217015859-scaled.jpg)
![图片[11]-全球设计案例智能库_OJBKAI.COM【CCD】深圳碧海玖号花园售楼中心+会所项目深化设计方案文本册 | PPT(可编辑)+PDF+JPG | 70P | 276M-全球设计案例智能库_OJBKAI.COM设计智库](https://ojbkai.com/wp-content/uploads/2025/12/1a65be089220251217015859-scaled.jpg)
![图片[12]-全球设计案例智能库_OJBKAI.COM【CCD】深圳碧海玖号花园售楼中心+会所项目深化设计方案文本册 | PPT(可编辑)+PDF+JPG | 70P | 276M-全球设计案例智能库_OJBKAI.COM设计智库](https://ojbkai.com/wp-content/uploads/2025/12/6caebb700320251217015859-scaled.jpg)
![图片[13]-全球设计案例智能库_OJBKAI.COM【CCD】深圳碧海玖号花园售楼中心+会所项目深化设计方案文本册 | PPT(可编辑)+PDF+JPG | 70P | 276M-全球设计案例智能库_OJBKAI.COM设计智库](https://ojbkai.com/wp-content/uploads/2025/12/6cfb5c912a20251217015859-scaled.jpg)
![图片[14]-全球设计案例智能库_OJBKAI.COM【CCD】深圳碧海玖号花园售楼中心+会所项目深化设计方案文本册 | PPT(可编辑)+PDF+JPG | 70P | 276M-全球设计案例智能库_OJBKAI.COM设计智库](https://ojbkai.com/wp-content/uploads/2025/12/ad6f2ed1a020251217015900-scaled.jpg)
![图片[15]-全球设计案例智能库_OJBKAI.COM【CCD】深圳碧海玖号花园售楼中心+会所项目深化设计方案文本册 | PPT(可编辑)+PDF+JPG | 70P | 276M-全球设计案例智能库_OJBKAI.COM设计智库](https://ojbkai.com/wp-content/uploads/2025/12/25302aec6120251217015859-scaled.jpg)
![图片[16]-全球设计案例智能库_OJBKAI.COM【CCD】深圳碧海玖号花园售楼中心+会所项目深化设计方案文本册 | PPT(可编辑)+PDF+JPG | 70P | 276M-全球设计案例智能库_OJBKAI.COM设计智库](https://ojbkai.com/wp-content/uploads/2025/12/e7ca93ee8220251217015859-scaled.jpg)
![图片[17]-全球设计案例智能库_OJBKAI.COM【CCD】深圳碧海玖号花园售楼中心+会所项目深化设计方案文本册 | PPT(可编辑)+PDF+JPG | 70P | 276M-全球设计案例智能库_OJBKAI.COM设计智库](https://ojbkai.com/wp-content/uploads/2025/12/e9cdabf66e20251217015900-scaled.jpg)
![图片[18]-全球设计案例智能库_OJBKAI.COM【CCD】深圳碧海玖号花园售楼中心+会所项目深化设计方案文本册 | PPT(可编辑)+PDF+JPG | 70P | 276M-全球设计案例智能库_OJBKAI.COM设计智库](https://ojbkai.com/wp-content/uploads/2025/12/3c7b46767420251217015933-scaled.jpg)
![图片[19]-全球设计案例智能库_OJBKAI.COM【CCD】深圳碧海玖号花园售楼中心+会所项目深化设计方案文本册 | PPT(可编辑)+PDF+JPG | 70P | 276M-全球设计案例智能库_OJBKAI.COM设计智库](https://ojbkai.com/wp-content/uploads/2025/12/af7395935d20251217015942-scaled.jpg)
![图片[20]-全球设计案例智能库_OJBKAI.COM【CCD】深圳碧海玖号花园售楼中心+会所项目深化设计方案文本册 | PPT(可编辑)+PDF+JPG | 70P | 276M-全球设计案例智能库_OJBKAI.COM设计智库](https://ojbkai.com/wp-content/uploads/2025/12/2e881ab22420251217015940-scaled.jpg)
![图片[21]-全球设计案例智能库_OJBKAI.COM【CCD】深圳碧海玖号花园售楼中心+会所项目深化设计方案文本册 | PPT(可编辑)+PDF+JPG | 70P | 276M-全球设计案例智能库_OJBKAI.COM设计智库](https://ojbkai.com/wp-content/uploads/2025/12/c3a9174c2a20251217015936-scaled.jpg)
![图片[22]-全球设计案例智能库_OJBKAI.COM【CCD】深圳碧海玖号花园售楼中心+会所项目深化设计方案文本册 | PPT(可编辑)+PDF+JPG | 70P | 276M-全球设计案例智能库_OJBKAI.COM设计智库](https://ojbkai.com/wp-content/uploads/2025/12/5a928e300920251217015938-scaled.jpg)
![图片[23]-全球设计案例智能库_OJBKAI.COM【CCD】深圳碧海玖号花园售楼中心+会所项目深化设计方案文本册 | PPT(可编辑)+PDF+JPG | 70P | 276M-全球设计案例智能库_OJBKAI.COM设计智库](https://ojbkai.com/wp-content/uploads/2025/12/24935edeb920251217015937-scaled.jpg)
![图片[24]-全球设计案例智能库_OJBKAI.COM【CCD】深圳碧海玖号花园售楼中心+会所项目深化设计方案文本册 | PPT(可编辑)+PDF+JPG | 70P | 276M-全球设计案例智能库_OJBKAI.COM设计智库](https://ojbkai.com/wp-content/uploads/2025/12/d25d36843320251217015938-scaled.jpg)
![图片[25]-全球设计案例智能库_OJBKAI.COM【CCD】深圳碧海玖号花园售楼中心+会所项目深化设计方案文本册 | PPT(可编辑)+PDF+JPG | 70P | 276M-全球设计案例智能库_OJBKAI.COM设计智库](https://ojbkai.com/wp-content/uploads/2025/12/1f2d6e068020251217015938-scaled.jpg)
![图片[26]-全球设计案例智能库_OJBKAI.COM【CCD】深圳碧海玖号花园售楼中心+会所项目深化设计方案文本册 | PPT(可编辑)+PDF+JPG | 70P | 276M-全球设计案例智能库_OJBKAI.COM设计智库](https://ojbkai.com/wp-content/uploads/2025/12/eb6a257ce020251217015938-scaled.jpg)
![图片[27]-全球设计案例智能库_OJBKAI.COM【CCD】深圳碧海玖号花园售楼中心+会所项目深化设计方案文本册 | PPT(可编辑)+PDF+JPG | 70P | 276M-全球设计案例智能库_OJBKAI.COM设计智库](https://ojbkai.com/wp-content/uploads/2025/12/1f6863563120251217015934-scaled.jpg)
![图片[28]-全球设计案例智能库_OJBKAI.COM【CCD】深圳碧海玖号花园售楼中心+会所项目深化设计方案文本册 | PPT(可编辑)+PDF+JPG | 70P | 276M-全球设计案例智能库_OJBKAI.COM设计智库](https://ojbkai.com/wp-content/uploads/2025/12/d19a94f4e920251217015938-scaled.jpg)
![图片[29]-全球设计案例智能库_OJBKAI.COM【CCD】深圳碧海玖号花园售楼中心+会所项目深化设计方案文本册 | PPT(可编辑)+PDF+JPG | 70P | 276M-全球设计案例智能库_OJBKAI.COM设计智库](https://ojbkai.com/wp-content/uploads/2025/12/460495c5f020251217015939-scaled.jpg)
![图片[30]-全球设计案例智能库_OJBKAI.COM【CCD】深圳碧海玖号花园售楼中心+会所项目深化设计方案文本册 | PPT(可编辑)+PDF+JPG | 70P | 276M-全球设计案例智能库_OJBKAI.COM设计智库](https://ojbkai.com/wp-content/uploads/2025/12/e456cd7bc220251217015938-scaled.jpg)
![图片[31]-全球设计案例智能库_OJBKAI.COM【CCD】深圳碧海玖号花园售楼中心+会所项目深化设计方案文本册 | PPT(可编辑)+PDF+JPG | 70P | 276M-全球设计案例智能库_OJBKAI.COM设计智库](https://ojbkai.com/wp-content/uploads/2025/12/c84353149020251217015941-scaled.jpg)
![图片[32]-全球设计案例智能库_OJBKAI.COM【CCD】深圳碧海玖号花园售楼中心+会所项目深化设计方案文本册 | PPT(可编辑)+PDF+JPG | 70P | 276M-全球设计案例智能库_OJBKAI.COM设计智库](https://ojbkai.com/wp-content/uploads/2025/12/00190095cf20251217015940-scaled.jpg)
![图片[33]-全球设计案例智能库_OJBKAI.COM【CCD】深圳碧海玖号花园售楼中心+会所项目深化设计方案文本册 | PPT(可编辑)+PDF+JPG | 70P | 276M-全球设计案例智能库_OJBKAI.COM设计智库](https://ojbkai.com/wp-content/uploads/2025/12/3ce35f512b20251217015939-scaled.jpg)
![图片[34]-全球设计案例智能库_OJBKAI.COM【CCD】深圳碧海玖号花园售楼中心+会所项目深化设计方案文本册 | PPT(可编辑)+PDF+JPG | 70P | 276M-全球设计案例智能库_OJBKAI.COM设计智库](https://ojbkai.com/wp-content/uploads/2025/12/efd8f7805620251217015939-scaled.jpg)
![图片[35]-全球设计案例智能库_OJBKAI.COM【CCD】深圳碧海玖号花园售楼中心+会所项目深化设计方案文本册 | PPT(可编辑)+PDF+JPG | 70P | 276M-全球设计案例智能库_OJBKAI.COM设计智库](https://ojbkai.com/wp-content/uploads/2025/12/d7848ac42220251217015942-scaled.jpg)
![图片[36]-全球设计案例智能库_OJBKAI.COM【CCD】深圳碧海玖号花园售楼中心+会所项目深化设计方案文本册 | PPT(可编辑)+PDF+JPG | 70P | 276M-全球设计案例智能库_OJBKAI.COM设计智库](https://ojbkai.com/wp-content/uploads/2025/12/153fb56c2820251217015939-scaled.jpg)
![图片[37]-全球设计案例智能库_OJBKAI.COM【CCD】深圳碧海玖号花园售楼中心+会所项目深化设计方案文本册 | PPT(可编辑)+PDF+JPG | 70P | 276M-全球设计案例智能库_OJBKAI.COM设计智库](https://ojbkai.com/wp-content/uploads/2025/12/731b76d0d520251217015937-scaled.jpg)
![图片[38]-全球设计案例智能库_OJBKAI.COM【CCD】深圳碧海玖号花园售楼中心+会所项目深化设计方案文本册 | PPT(可编辑)+PDF+JPG | 70P | 276M-全球设计案例智能库_OJBKAI.COM设计智库](https://ojbkai.com/wp-content/uploads/2025/12/6a4d894b9d20251217015942-scaled.jpg)
![图片[39]-全球设计案例智能库_OJBKAI.COM【CCD】深圳碧海玖号花园售楼中心+会所项目深化设计方案文本册 | PPT(可编辑)+PDF+JPG | 70P | 276M-全球设计案例智能库_OJBKAI.COM设计智库](https://ojbkai.com/wp-content/uploads/2025/12/1711f824ab20251217015938-scaled.jpg)
![图片[40]-全球设计案例智能库_OJBKAI.COM【CCD】深圳碧海玖号花园售楼中心+会所项目深化设计方案文本册 | PPT(可编辑)+PDF+JPG | 70P | 276M-全球设计案例智能库_OJBKAI.COM设计智库](https://ojbkai.com/wp-content/uploads/2025/12/aa30d2952b20251217015943-scaled.jpg)
![图片[41]-全球设计案例智能库_OJBKAI.COM【CCD】深圳碧海玖号花园售楼中心+会所项目深化设计方案文本册 | PPT(可编辑)+PDF+JPG | 70P | 276M-全球设计案例智能库_OJBKAI.COM设计智库](https://ojbkai.com/wp-content/uploads/2025/12/30122c78af20251217015941-scaled.jpg)
![图片[42]-全球设计案例智能库_OJBKAI.COM【CCD】深圳碧海玖号花园售楼中心+会所项目深化设计方案文本册 | PPT(可编辑)+PDF+JPG | 70P | 276M-全球设计案例智能库_OJBKAI.COM设计智库](https://ojbkai.com/wp-content/uploads/2025/12/c2c6f12cd720251217020021-scaled.jpg)
![图片[43]-全球设计案例智能库_OJBKAI.COM【CCD】深圳碧海玖号花园售楼中心+会所项目深化设计方案文本册 | PPT(可编辑)+PDF+JPG | 70P | 276M-全球设计案例智能库_OJBKAI.COM设计智库](https://ojbkai.com/wp-content/uploads/2025/12/8b24bf76d720251217020023-scaled.jpg)
![图片[44]-全球设计案例智能库_OJBKAI.COM【CCD】深圳碧海玖号花园售楼中心+会所项目深化设计方案文本册 | PPT(可编辑)+PDF+JPG | 70P | 276M-全球设计案例智能库_OJBKAI.COM设计智库](https://ojbkai.com/wp-content/uploads/2025/12/917fecf34e20251217020024-scaled.jpg)
![图片[45]-全球设计案例智能库_OJBKAI.COM【CCD】深圳碧海玖号花园售楼中心+会所项目深化设计方案文本册 | PPT(可编辑)+PDF+JPG | 70P | 276M-全球设计案例智能库_OJBKAI.COM设计智库](https://ojbkai.com/wp-content/uploads/2025/12/f04bef36d720251217020023-scaled.jpg)
![图片[46]-全球设计案例智能库_OJBKAI.COM【CCD】深圳碧海玖号花园售楼中心+会所项目深化设计方案文本册 | PPT(可编辑)+PDF+JPG | 70P | 276M-全球设计案例智能库_OJBKAI.COM设计智库](https://ojbkai.com/wp-content/uploads/2025/12/1deb38050c20251217020024-scaled.jpg)
![图片[47]-全球设计案例智能库_OJBKAI.COM【CCD】深圳碧海玖号花园售楼中心+会所项目深化设计方案文本册 | PPT(可编辑)+PDF+JPG | 70P | 276M-全球设计案例智能库_OJBKAI.COM设计智库](https://ojbkai.com/wp-content/uploads/2025/12/8d534c3cff20251217020024-scaled.jpg)
![图片[48]-全球设计案例智能库_OJBKAI.COM【CCD】深圳碧海玖号花园售楼中心+会所项目深化设计方案文本册 | PPT(可编辑)+PDF+JPG | 70P | 276M-全球设计案例智能库_OJBKAI.COM设计智库](https://ojbkai.com/wp-content/uploads/2025/12/a634e0cc2720251217020026-scaled.jpg)
![图片[49]-全球设计案例智能库_OJBKAI.COM【CCD】深圳碧海玖号花园售楼中心+会所项目深化设计方案文本册 | PPT(可编辑)+PDF+JPG | 70P | 276M-全球设计案例智能库_OJBKAI.COM设计智库](https://ojbkai.com/wp-content/uploads/2025/12/8e2475060a20251217020023-scaled.jpg)
![图片[50]-全球设计案例智能库_OJBKAI.COM【CCD】深圳碧海玖号花园售楼中心+会所项目深化设计方案文本册 | PPT(可编辑)+PDF+JPG | 70P | 276M-全球设计案例智能库_OJBKAI.COM设计智库](https://ojbkai.com/wp-content/uploads/2025/12/05f173f5cf20251217020025-scaled.jpg)
![图片[51]-全球设计案例智能库_OJBKAI.COM【CCD】深圳碧海玖号花园售楼中心+会所项目深化设计方案文本册 | PPT(可编辑)+PDF+JPG | 70P | 276M-全球设计案例智能库_OJBKAI.COM设计智库](https://ojbkai.com/wp-content/uploads/2025/12/c2c2f51f5020251217020025-scaled.jpg)
![图片[52]-全球设计案例智能库_OJBKAI.COM【CCD】深圳碧海玖号花园售楼中心+会所项目深化设计方案文本册 | PPT(可编辑)+PDF+JPG | 70P | 276M-全球设计案例智能库_OJBKAI.COM设计智库](https://ojbkai.com/wp-content/uploads/2025/12/7a09fed55720251217020026-scaled.jpg)
![图片[53]-全球设计案例智能库_OJBKAI.COM【CCD】深圳碧海玖号花园售楼中心+会所项目深化设计方案文本册 | PPT(可编辑)+PDF+JPG | 70P | 276M-全球设计案例智能库_OJBKAI.COM设计智库](https://ojbkai.com/wp-content/uploads/2025/12/b3a421ea6220251217020025-scaled.jpg)
![图片[54]-全球设计案例智能库_OJBKAI.COM【CCD】深圳碧海玖号花园售楼中心+会所项目深化设计方案文本册 | PPT(可编辑)+PDF+JPG | 70P | 276M-全球设计案例智能库_OJBKAI.COM设计智库](https://ojbkai.com/wp-content/uploads/2025/12/fc40d3de4e20251217020025-scaled.jpg)
![图片[55]-全球设计案例智能库_OJBKAI.COM【CCD】深圳碧海玖号花园售楼中心+会所项目深化设计方案文本册 | PPT(可编辑)+PDF+JPG | 70P | 276M-全球设计案例智能库_OJBKAI.COM设计智库](https://ojbkai.com/wp-content/uploads/2025/12/e47c38999a20251217020023-scaled.jpg)
![图片[56]-全球设计案例智能库_OJBKAI.COM【CCD】深圳碧海玖号花园售楼中心+会所项目深化设计方案文本册 | PPT(可编辑)+PDF+JPG | 70P | 276M-全球设计案例智能库_OJBKAI.COM设计智库](https://ojbkai.com/wp-content/uploads/2025/12/a09d231ab420251217020027-scaled.jpg)
![图片[57]-全球设计案例智能库_OJBKAI.COM【CCD】深圳碧海玖号花园售楼中心+会所项目深化设计方案文本册 | PPT(可编辑)+PDF+JPG | 70P | 276M-全球设计案例智能库_OJBKAI.COM设计智库](https://ojbkai.com/wp-content/uploads/2025/12/eb5cd074e420251217020025-scaled.jpg)
![图片[58]-全球设计案例智能库_OJBKAI.COM【CCD】深圳碧海玖号花园售楼中心+会所项目深化设计方案文本册 | PPT(可编辑)+PDF+JPG | 70P | 276M-全球设计案例智能库_OJBKAI.COM设计智库](https://ojbkai.com/wp-content/uploads/2025/12/554119a08120251217020026-scaled.jpg)
![图片[59]-全球设计案例智能库_OJBKAI.COM【CCD】深圳碧海玖号花园售楼中心+会所项目深化设计方案文本册 | PPT(可编辑)+PDF+JPG | 70P | 276M-全球设计案例智能库_OJBKAI.COM设计智库](https://ojbkai.com/wp-content/uploads/2025/12/de4d560a5b20251217020023-scaled.jpg)
![图片[60]-全球设计案例智能库_OJBKAI.COM【CCD】深圳碧海玖号花园售楼中心+会所项目深化设计方案文本册 | PPT(可编辑)+PDF+JPG | 70P | 276M-全球设计案例智能库_OJBKAI.COM设计智库](https://ojbkai.com/wp-content/uploads/2025/12/1e3383e0bd20251217020024-scaled.jpg)
![图片[61]-全球设计案例智能库_OJBKAI.COM【CCD】深圳碧海玖号花园售楼中心+会所项目深化设计方案文本册 | PPT(可编辑)+PDF+JPG | 70P | 276M-全球设计案例智能库_OJBKAI.COM设计智库](https://ojbkai.com/wp-content/uploads/2025/12/3bf12ad05220251217020025-scaled.jpg)
![图片[62]-全球设计案例智能库_OJBKAI.COM【CCD】深圳碧海玖号花园售楼中心+会所项目深化设计方案文本册 | PPT(可编辑)+PDF+JPG | 70P | 276M-全球设计案例智能库_OJBKAI.COM设计智库](https://ojbkai.com/wp-content/uploads/2025/12/bf798a5c2520251217020026-scaled.jpg)
![图片[63]-全球设计案例智能库_OJBKAI.COM【CCD】深圳碧海玖号花园售楼中心+会所项目深化设计方案文本册 | PPT(可编辑)+PDF+JPG | 70P | 276M-全球设计案例智能库_OJBKAI.COM设计智库](https://ojbkai.com/wp-content/uploads/2025/12/f0cf93608f20251217020027-scaled.jpg)
![图片[64]-全球设计案例智能库_OJBKAI.COM【CCD】深圳碧海玖号花园售楼中心+会所项目深化设计方案文本册 | PPT(可编辑)+PDF+JPG | 70P | 276M-全球设计案例智能库_OJBKAI.COM设计智库](https://ojbkai.com/wp-content/uploads/2025/12/426b168fa020251217020025-scaled.jpg)
![图片[65]-全球设计案例智能库_OJBKAI.COM【CCD】深圳碧海玖号花园售楼中心+会所项目深化设计方案文本册 | PPT(可编辑)+PDF+JPG | 70P | 276M-全球设计案例智能库_OJBKAI.COM设计智库](https://ojbkai.com/wp-content/uploads/2025/12/e0ba3a470c20251217020028-scaled.jpg)
![图片[66]-全球设计案例智能库_OJBKAI.COM【CCD】深圳碧海玖号花园售楼中心+会所项目深化设计方案文本册 | PPT(可编辑)+PDF+JPG | 70P | 276M-全球设计案例智能库_OJBKAI.COM设计智库](https://ojbkai.com/wp-content/uploads/2025/12/613ddc078f20251217020028-scaled.jpg)
![图片[67]-全球设计案例智能库_OJBKAI.COM【CCD】深圳碧海玖号花园售楼中心+会所项目深化设计方案文本册 | PPT(可编辑)+PDF+JPG | 70P | 276M-全球设计案例智能库_OJBKAI.COM设计智库](https://ojbkai.com/wp-content/uploads/2025/12/f32dbf1bbb20251217020025-scaled.jpg)
![图片[68]-全球设计案例智能库_OJBKAI.COM【CCD】深圳碧海玖号花园售楼中心+会所项目深化设计方案文本册 | PPT(可编辑)+PDF+JPG | 70P | 276M-全球设计案例智能库_OJBKAI.COM设计智库](https://ojbkai.com/wp-content/uploads/2025/12/a70e0ea73120251217020024-scaled.jpg)
![图片[69]-全球设计案例智能库_OJBKAI.COM【CCD】深圳碧海玖号花园售楼中心+会所项目深化设计方案文本册 | PPT(可编辑)+PDF+JPG | 70P | 276M-全球设计案例智能库_OJBKAI.COM设计智库](https://ojbkai.com/wp-content/uploads/2025/12/c75005916320251217020026-scaled.jpg)
![图片[70]-全球设计案例智能库_OJBKAI.COM【CCD】深圳碧海玖号花园售楼中心+会所项目深化设计方案文本册 | PPT(可编辑)+PDF+JPG | 70P | 276M-全球设计案例智能库_OJBKAI.COM设计智库](https://ojbkai.com/wp-content/uploads/2025/12/57d0f55cca20251217020025-scaled.jpg)
![图片[71]-全球设计案例智能库_OJBKAI.COM【CCD】深圳碧海玖号花园售楼中心+会所项目深化设计方案文本册 | PPT(可编辑)+PDF+JPG | 70P | 276M-全球设计案例智能库_OJBKAI.COM设计智库](https://ojbkai.com/wp-content/uploads/2025/12/a7d6a2fb2d20251217020024-scaled.jpg)
© 版权声明
网站声明 :本站属于分享网站,仅用于观看哦,并非完全原创,如有侵犯到您的权益,请告知我们,会立刻下架 - 设计智库 邮箱:sucai1588@163.com
THE END


























暂无评论内容