【CCD】福州·烟山江翠样板间设计方案
一、主题设计思想
这套设计的主题思想为“温馨现代,功能与舒适并重”。空间设计通过现代简约风格的线条和质感,注重家庭生活的舒适性与实用性,同时加入了柔和的色调和精致的装饰,使每个空间既具现代感又不失温馨感,营造出一个既适合家庭生活又充满品位的居住空间。
二、设计风格
- 风格定位:现代简约风格。设计强调简洁、流畅的线条和功能性的布局,避免过多的装饰,突出空间的舒适性和实用性。每个空间的设计都着重考虑使用者的实际需求,注重居住体验的优化。
- 设计特点:设计简约而富有现代感,空间布局注重生活功能与舒适度的结合,整体风格时尚且不失温馨。通过精致的材质与柔和的灯光设计,营造出一个充满现代气息的家居环境。
三、空间布局
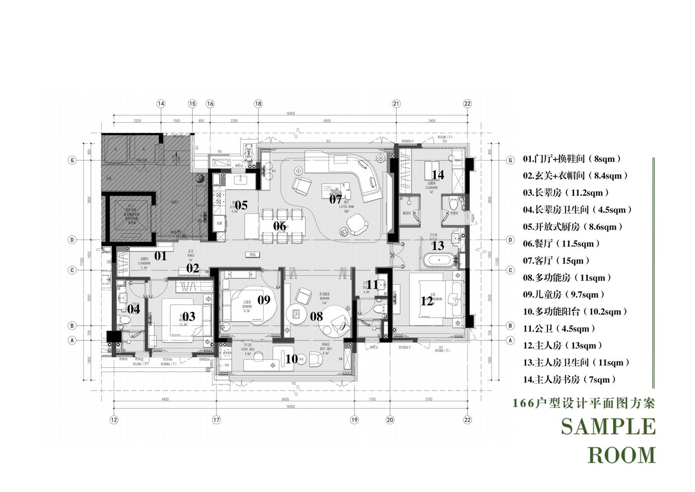
- 开放式布局:设计中的客厅与餐厅区域采用了开放式布局,打破了传统的空间隔断,使得空间更加通透和宽敞,促进家庭成员间的互动与交流。开放式的空间布局增强了空间的流动感。
- 功能分区:空间通过不同的布局和装饰进行功能区域的区分,既保留了空间的开敞感,又满足了不同生活需求的独立性。例如,书房、卧室和儿童房的设计都根据其功能特点进行布局,确保了空间的高效利用和舒适性。
- 动线设计:动线清晰流畅,各功能区的布置相互呼应,避免了空间的拥挤感。特别是在生活区和休息区的过渡上,设计考虑到人与空间的互动,确保了舒适的使用体验。
四、色彩搭配
- 主色调:整体色调以米白色、浅灰色和木质色为主,创造出一个温馨、舒适且宁静的居住氛围。这些色彩为空间带来明亮感,也让空间显得开阔和现代。
- 点缀色:在一些细节中加入了深蓝色、深棕色等深色系作为点缀,增添了空间的层次感和沉稳感。这些点缀色不仅提升了视觉效果,也为空间增加了一些深度和活力。
- 色彩层次感:设计通过色彩的渐变和不同深浅的对比,营造了空间的层次感和立体感,使空间更具视觉冲击力,避免了单一色调带来的沉闷感。
五、材质分析
- 木质材料:设计中使用了大量的木材,特别是在地面、家具和墙面装饰中,木质材料的运用为空间带来了自然的温暖感,增强了空间的亲和力。木材的自然纹理为空间增添了层次感和质感。
- 大理石与金属:大理石材质被用于地面和部分墙面的装饰,带来奢华和稳定感,而金属元素则通过灯具、装饰件和家具细节中点缀,使空间充满现代感。
- 布艺与玻璃:布艺的使用为空间带来了柔软的触感,尤其是在沙发、窗帘等软装部分。玻璃的使用增加了空间的通透感,尤其是在窗户和隔断设计中,提升了空间的现代感与视觉效果。
六、灯光设计
- 自然光引入:空间通过大面积的窗户和开放式布局,最大程度地引入自然光,使空间充满阳光和活力。自然光的加入使空间更加宽敞且富有生气。
- 功能性与装饰性结合:灯光设计既有基本的照明功能,又兼具装饰性。吊灯、筒灯、嵌入式灯具等的搭配,不仅为空间提供了充足的光线,也为空间增添了层次感和艺术气息。
- 灯光与空间氛围的融合:灯光的设计通过对不同区域的重点照明,营造了不同的氛围。例如,卧室区域使用了柔和的暖光,休息区域则采用了明亮的冷光,使空间的功能性和舒适性得到了平衡。
七、艺术陈设装饰元素
- 现代艺术品装饰:空间内布置了现代艺术画作、雕塑等艺术品,展示了设计的独特性和现代感。这些艺术装饰为空间增添了文化气息和艺术氛围,使空间更具视觉吸引力。
- 绿植装饰:通过绿植的布置为空间带来了自然气息,提升了空间的舒适感和宜人感。绿植的使用不仅美化了空间,也为空间增添了生气。
- 装饰墙面:设计通过大理石、木材等材质的巧妙搭配,在墙面上创建了独特的装饰效果,增强了空间的层次感和艺术感,使空间不至于过于单调。
八、软装家具
- 现代简约家具:家具选用了简洁的现代风格,线条流畅,造型简约,材质高端,既保证了舒适性,又为空间增添了现代感和高端感。
- 功能性与舒适性并重:软装家具不仅考虑到外观和风格,还注重人体工学和舒适性。沙发、床具、办公桌等家具设计,提供了足够的舒适度和实用性,适应家庭生活和工作需求。
九、设计总结
这套设计通过现代简约风格的巧妙运用,成功打造了一个既富有现代感又充满温馨感的家居空间。色彩搭配、材质选择和空间布局都经过精心设计,既保证了功能性,又确保了视觉上的舒适性。设计通过合理的灯光与软装搭配,为空间增添了层次感与舒适感,体现了现代家居生活的理想状态。整体设计注重细节,风格简洁大气,适合现代家庭的居住需求,充分展现了舒适性、实用性与艺术性的完美结合。
![图片[1]-全球设计案例智能库_OJBKAI.COM【CCD】福州·烟山江翠样板间设计方案 | PPT(可编辑)+PDF+JPG | 54P | 262M-全球设计案例智能库_OJBKAI.COM设计智库](https://ojbkai.com/wp-content/uploads/2025/12/85ebfa0f3b20251218144202-1024x283.png)
【CCD】福州·烟山江翠样板间设计方案



















© 版权声明
网站声明 :本站属于分享网站,仅用于观看哦,并非完全原创,如有侵犯到您的权益,请告知我们,会立刻下架 - 设计智库 邮箱:sucai1588@163.com
THE END


























暂无评论内容