西安华润BBCD华润润玺公寓塔楼精装公区室内设计方案
一、主题设计思想
「长安礼序 · 当代府门厅」。
以“门庭礼序—巷道院落—厅堂会客”的传统府邸秩序为骨架,把西安厚重的历史感,转译成当代高端公寓的精装公区: 入口像一座城市“府门”,电梯厅是纵向拔高的“门庭”,宅间会客与休憩区则像缩微的“厅堂与小庭院”,在有限的塔楼层高里做出庄重、克制又不失温度的到家仪式。
二、设计风格
- 主风格:现代东方 / 都会轻奢
- 特征:
- 体块与比例借鉴传统院落的门廊、影壁、廊道;
- 细节上用金属格栅、木格栅、半通透屏风做“窗棂”语言;
- 石材、深木、金属与织物形成低饱和的奢华感。
三、空间布局
(名称 + 应用方式 + 功能特性)
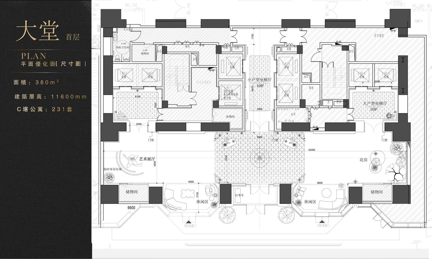
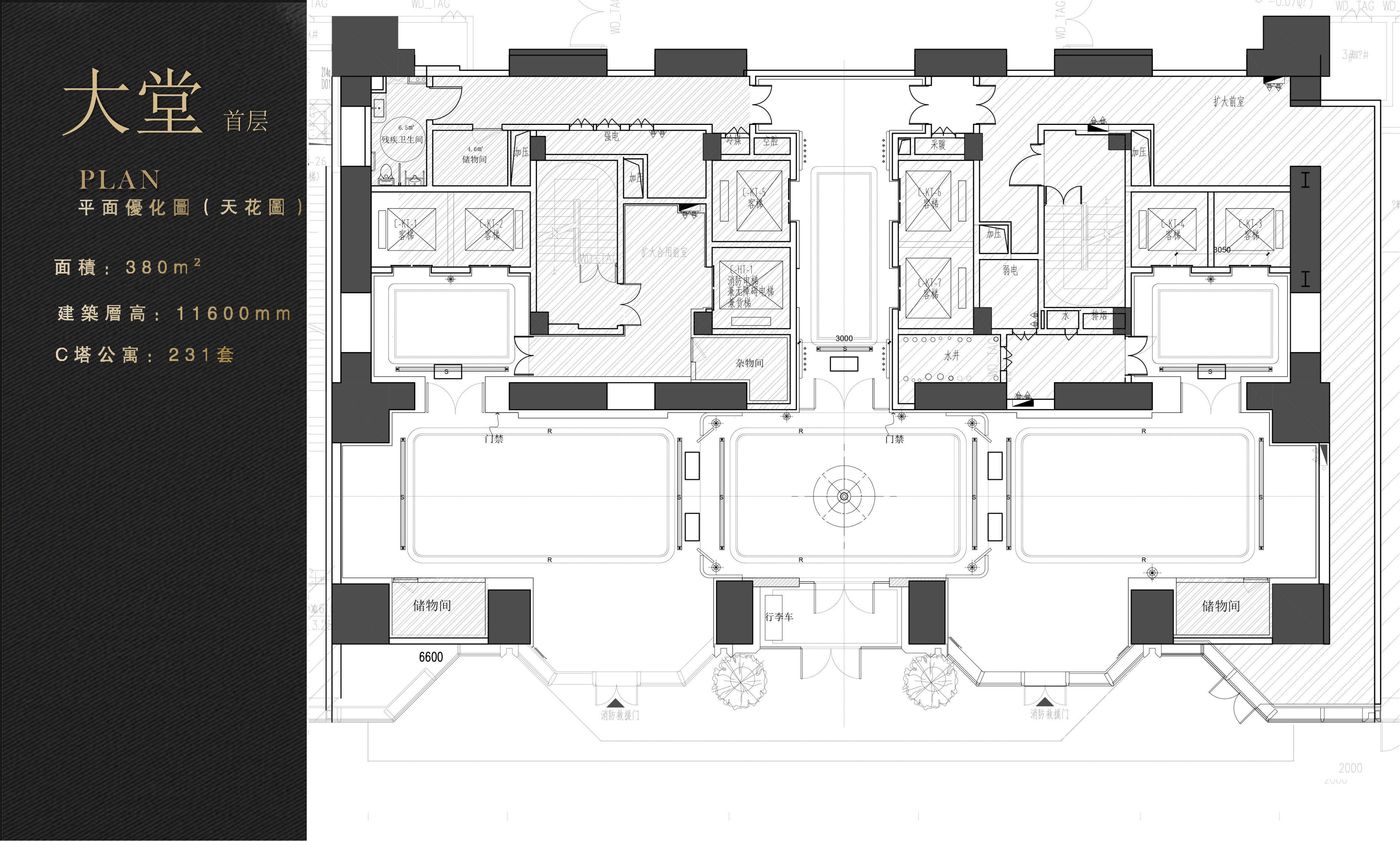
- 首层入口门厅与车道雨棚
- 应用方式:外立面做出对称门廊,两侧石柱,中间金属雨棚下沉,顶部点状灯阵;门厅内外地面统一石材铺装。
- 功能特性:
- 形成“礼仪门槛”,从城市空间过渡到私宅领域;
- 夜间雨棚灯阵强化到达感和项目形象。
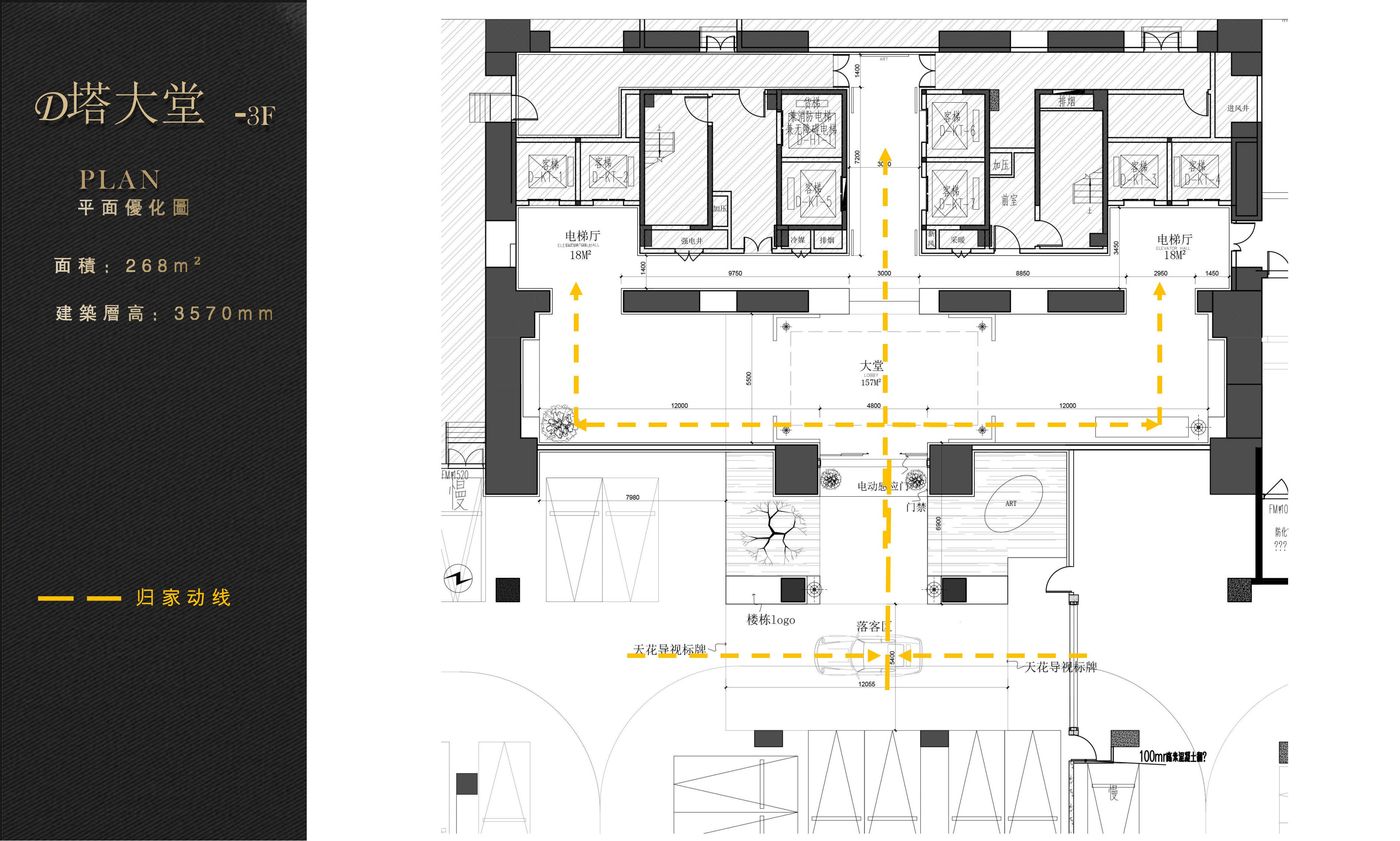
- 首层电梯前厅 / 大堂空间
- 应用方式:电梯厅为纵向拉高的“盒子”,两侧是石柱与金属格栅,端景为对称电梯门,中间地面黑白几何石拼。
- 功能特性:
- 完成住户垂直交通的聚散;
- 通过高挑、对称和精细材质迅速传递“高端塔楼”的气质。
- 宅间会客厅 / 共享休憩区
- 应用方式:与电梯厅相邻,半开放格栅围合,内设低矮沙发、单椅与圆几,靠窗一侧引入绿植与庭院景观。
- 功能特性:
- 为住户提供等候、会客、小型洽谈的场所;
- 让塔楼公区不只是“通行空间”,而是可停留、可社交的“共享客厅”。
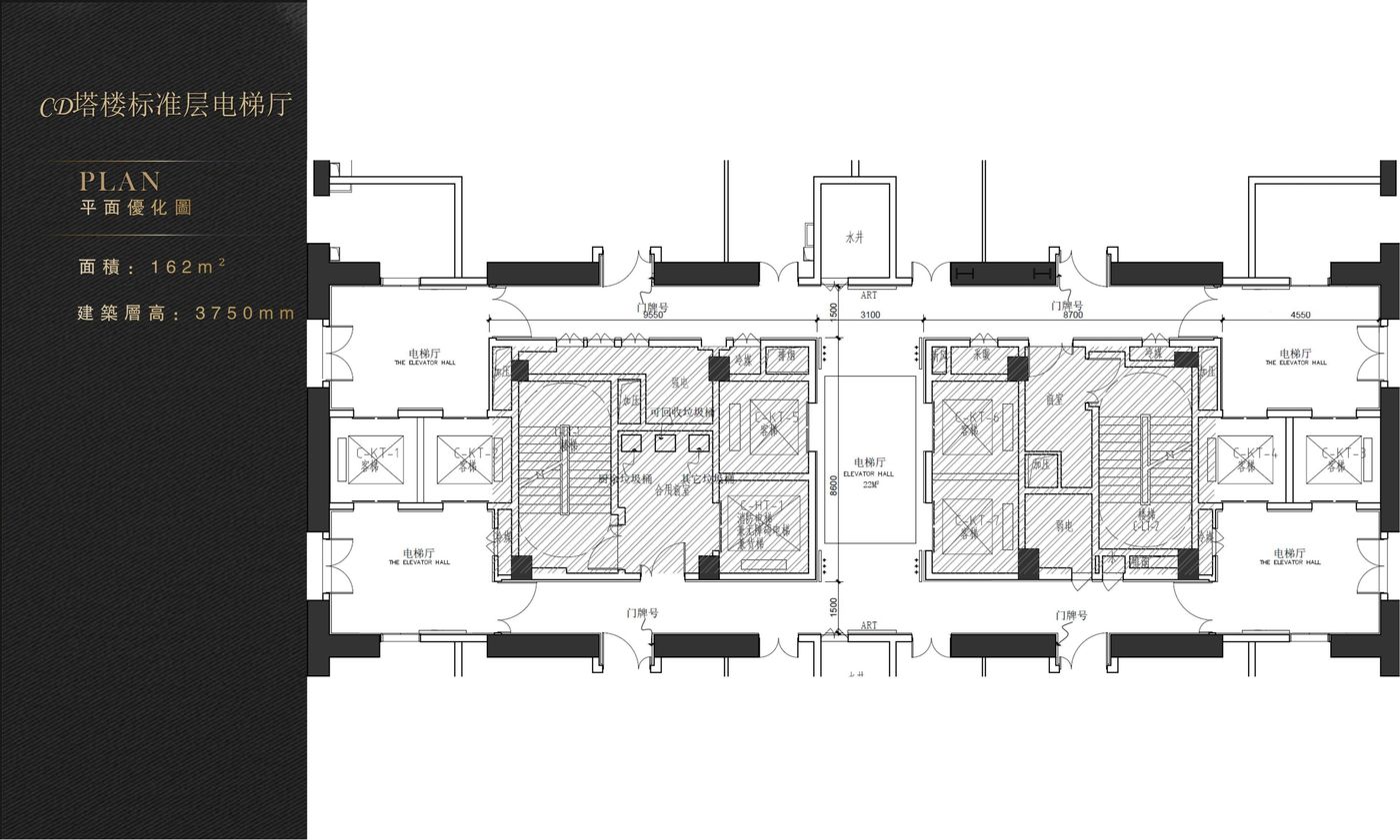
- 竖向交通走廊与电梯前室(标准层)
- 应用方式:电梯前室保持与首层同源的石材+木饰面体系,走廊尺度略收窄,顶面线性灯沿行进方向布置。
- 功能特性:
- 通过连续的材质与灯光加强“回家路径”的记忆;
- 控制造价同时保证气质统一。
- 过厅通道 / 仿“巷道”空间
- 应用方式:局部走廊顶部压低,墙面深色木+竖向灯带,尽端做艺术端景。
- 功能特性:
- 模拟院落中的“巷、廊”体验,从压低到豁然开朗,做出空间节奏。
四、色彩搭配
(颜色名称 + 应用位置 + 色彩特征 + 搭配作用)
- 深咖啡木色
- 应用位置:墙面木饰面、格栅、门套、家具。
- 色彩特征:低明度、偏暖,质感厚重。
- 搭配作用:构成空间的“背景色”,营造庄重、静谧的公共空间氛围。
- 暖米白 / 米灰石色
- 应用位置:大面积石材墙面、顶面局部、软包背景。
- 色彩特征:中高明度、低饱和。
- 搭配作用:在深色木的包裹中做“留白”,平衡压抑感,提升明度。
- 黑白几何拼花
- 应用位置:大堂与电梯厅地面。
- 色彩特征:高对比度、节奏强。
- 搭配作用:强化入口区域的仪式性;同时拉开与普通住宅公区的档次差。
- 铜金色 / 香槟金
- 应用位置:线性金属条、灯具、拉手与框架。
- 色彩特征:低饱和金属暖色,微光泽。
- 搭配作用:作为“点睛色”,在深木与石材之间引入精致感,形成轻奢调性。
- 橙棕 / 砖红点缀
- 应用位置:会客区沙发、单椅和抱枕。
- 搭配作用:从冷静的主色中跳出一抹温度,让居住属性更鲜明。
五、材质分析
(名称 + 应用位置 + 材质特性)
- 大板石材 / 仿石瓷板
- 应用位置:大堂、电梯厅、墙面立面、地面拼花。
- 材质特性:纹理自然、耐磨耐污,大板铺装减少缝隙,形成整体感和豪华度。
- 深色木饰面
- 应用位置:墙面、格栅、门套、柜体。
- 材质特性:温润、可细化造型,便于表达东方“木构”语汇,同时控制成本与施工。
- 金属格栅与线条
- 应用位置:电梯厅两侧、会客区背景、顶面灯槽边框。
- 材质特性:反光适中,强化竖向秩序和层次感,同时作为防护与半通透分隔。
- 织物软包与皮革
- 应用位置:会客区壁面、沙发、单椅。
- 材质特性:触感柔软,提升舒适度,吸音降噪,平衡大量硬质材料的冷硬感。
- 玻璃与通透材质
- 应用位置:临街开窗、局部隔断与庭院界面。
- 材质特性:引入自然采光与绿景,让厚重石木之间有“气口”。
六、灯光设计
(灯光类型 + 应用位置 + 功能特性)
- 顶面点阵筒灯
- 应用位置:入口雨棚、大堂顶面。
- 功能特性:形成秩序感极强的点光阵列,配合石柱与金属顶板,构成迎宾仪式。
- 线性灯带与灯槽
- 应用位置:墙面边界、顶面吊顶槽、格栅背后。
- 功能特性:弱化灯具存在感,以“面光与线光”勾勒空间轮廓,营造沉浸的暖光氛围。
- 壁洗灯与竖向灯条
- 应用位置:电梯厅柱面、长廊墙面。
- 功能特性:强调竖向结构,使空间更显高耸;同时强化步行方向指引。
- 氛围灯 / 局部台灯
- 应用位置:会客区边几、矮柜上。
- 功能特性:营造“家”的尺度光,让公区从公共设施变成“客厅延伸”。
七、艺术陈设装饰元素
(名称 + 应用位置 + 特性/作用)
- 东方元素屏风与格栅
- 应用位置:会客区背景、电梯厅侧墙、庭院界面。
- 作用:提炼传统窗棂与隔扇的线条秩序,形成项目的核心视觉符号。
- 绿植与“院景”小景观
- 应用位置:会客区窗边、端景位置。
- 作用:在深色基调中引入“活的元素”,让空间与城市的自然环境产生关联,呼应“府院生活”想象。
- 现代艺术挂画与摆件
- 应用位置:休息区背景墙、桌面。
- 作用:抽象画与雕塑弱化具体年代感,让东方空间更具当代艺术气质。
八、软装家具
(名称 + 应用位置 + 材质特性)
- 低矮沙发与单椅
- 应用位置:会客休息区。
- 材质特性:皮质或织物包覆,橙棕与深灰色为主,坐高偏低、靠背略倾,营造松弛感。
- 圆形与方形茶几
- 应用位置:沙发中央与侧几。
- 材质特性:石材台面或木饰面,搭配金属脚,造型简洁,便于组合。
- 端景几与花几
- 应用位置:走廊尽端、厅堂角落。
- 材质特性:瘦高木质或金属支架,承托花艺与小雕塑,类似“案几”的现代诠释。
- 玄关坐凳
- 应用位置:局部等候区、换鞋区。
- 材质特性:布艺或皮质坐垫,形式简洁,为业主提供短暂停留的贴心功能。
九、设计总结
- 这套塔楼精装公区,通过“入口门廊—高挑电梯厅—院式会客厅—秩序走廊”的序列,把普通高层住宅的交通空间,升级为具有府邸礼序与酒店大厅气质的公共客厅。
- 以深木、石材、金属为主的材质体系配合暖光与几何拼花,形成一种克制但高识别度的现代东方形象,非常适合作为高端改善盘或豪宅公寓的示范公区模板。
- 对设计师而言,这个案例的学习重点在于:
- 如何在标准塔楼平面内,利用高度、比例与灯光做“仪式感”;
- 如何用有限的东方符号(格栅、屏风、院景)代替堆砌的传统图案;
- 如何通过“共享会客厅”的植入,把公区从“动线”升级为“生活场景”。
![图片[1]-全球设计案例智能库_OJBKAI.COM【CCD】西安CCBD华润润玺公寓塔楼精装公区 | 室内设计方案+效果图 | PPT(可编辑)+PDF+JPG | 49P | 262M-全球设计案例智能库_OJBKAI.COM设计智库](https://ojbkai.com/wp-content/uploads/2025/12/680cddee4320251217122637-1024x429.png)
西安华润BBCD华润润玺公寓塔楼精装公区室内设计方案

















































华润BBCD华润润玺公寓塔楼精装公区效果图
![图片[51]-全球设计案例智能库_OJBKAI.COM【CCD】西安CCBD华润润玺公寓塔楼精装公区 | 室内设计方案+效果图 | PPT(可编辑)+PDF+JPG | 49P | 262M-全球设计案例智能库_OJBKAI.COM设计智库](https://ojbkai.com/wp-content/uploads/2025/12/f3ccdd27d220251217123519-2046x1228.jpg)
![图片[52]-全球设计案例智能库_OJBKAI.COM【CCD】西安CCBD华润润玺公寓塔楼精装公区 | 室内设计方案+效果图 | PPT(可编辑)+PDF+JPG | 49P | 262M-全球设计案例智能库_OJBKAI.COM设计智库](https://ojbkai.com/wp-content/uploads/2025/12/156005c5ba20251217123525-2046x1228.jpg)
![图片[53]-全球设计案例智能库_OJBKAI.COM【CCD】西安CCBD华润润玺公寓塔楼精装公区 | 室内设计方案+效果图 | PPT(可编辑)+PDF+JPG | 49P | 262M-全球设计案例智能库_OJBKAI.COM设计智库](https://ojbkai.com/wp-content/uploads/2025/12/799bad5a3b20251217123523-2046x1228.jpg)
![图片[54]-全球设计案例智能库_OJBKAI.COM【CCD】西安CCBD华润润玺公寓塔楼精装公区 | 室内设计方案+效果图 | PPT(可编辑)+PDF+JPG | 49P | 262M-全球设计案例智能库_OJBKAI.COM设计智库](https://ojbkai.com/wp-content/uploads/2025/12/d0096ec6c820251217123524-2046x1228.jpg)
![图片[55]-全球设计案例智能库_OJBKAI.COM【CCD】西安CCBD华润润玺公寓塔楼精装公区 | 室内设计方案+效果图 | PPT(可编辑)+PDF+JPG | 49P | 262M-全球设计案例智能库_OJBKAI.COM设计智库](https://ojbkai.com/wp-content/uploads/2025/12/032b2cc93620251217123523-2046x1227.jpg)
![图片[56]-全球设计案例智能库_OJBKAI.COM【CCD】西安CCBD华润润玺公寓塔楼精装公区 | 室内设计方案+效果图 | PPT(可编辑)+PDF+JPG | 49P | 262M-全球设计案例智能库_OJBKAI.COM设计智库](https://ojbkai.com/wp-content/uploads/2025/12/18e299989120251217123522-2046x1693.jpg)
![图片[57]-全球设计案例智能库_OJBKAI.COM【CCD】西安CCBD华润润玺公寓塔楼精装公区 | 室内设计方案+效果图 | PPT(可编辑)+PDF+JPG | 49P | 262M-全球设计案例智能库_OJBKAI.COM设计智库](https://ojbkai.com/wp-content/uploads/2025/12/fe5df232ca20251217123525-2046x750.jpg)
![图片[58]-全球设计案例智能库_OJBKAI.COM【CCD】西安CCBD华润润玺公寓塔楼精装公区 | 室内设计方案+效果图 | PPT(可编辑)+PDF+JPG | 49P | 262M-全球设计案例智能库_OJBKAI.COM设计智库](https://ojbkai.com/wp-content/uploads/2025/12/8cda81fc7a20251217123524-2046x1903.jpg)
![图片[59]-全球设计案例智能库_OJBKAI.COM【CCD】西安CCBD华润润玺公寓塔楼精装公区 | 室内设计方案+效果图 | PPT(可编辑)+PDF+JPG | 49P | 262M-全球设计案例智能库_OJBKAI.COM设计智库](https://ojbkai.com/wp-content/uploads/2025/12/30e62fddc120251217123523-1815x2046.jpg)
![图片[60]-全球设计案例智能库_OJBKAI.COM【CCD】西安CCBD华润润玺公寓塔楼精装公区 | 室内设计方案+效果图 | PPT(可编辑)+PDF+JPG | 49P | 262M-全球设计案例智能库_OJBKAI.COM设计智库](https://ojbkai.com/wp-content/uploads/2025/12/ae5662532820251217123524-2046x1461.jpg)
![图片[61]-全球设计案例智能库_OJBKAI.COM【CCD】西安CCBD华润润玺公寓塔楼精装公区 | 室内设计方案+效果图 | PPT(可编辑)+PDF+JPG | 49P | 262M-全球设计案例智能库_OJBKAI.COM设计智库](https://ojbkai.com/wp-content/uploads/2025/12/62bf1edb3620251217123521-2046x916.jpg)
![图片[62]-全球设计案例智能库_OJBKAI.COM【CCD】西安CCBD华润润玺公寓塔楼精装公区 | 室内设计方案+效果图 | PPT(可编辑)+PDF+JPG | 49P | 262M-全球设计案例智能库_OJBKAI.COM设计智库](https://ojbkai.com/wp-content/uploads/2025/12/8df7b73a7820251217123520-1945x2046.jpg)
![图片[63]-全球设计案例智能库_OJBKAI.COM【CCD】西安CCBD华润润玺公寓塔楼精装公区 | 室内设计方案+效果图 | PPT(可编辑)+PDF+JPG | 49P | 262M-全球设计案例智能库_OJBKAI.COM设计智库](https://ojbkai.com/wp-content/uploads/2025/12/9414a8f5b820251217123520-1945x2046.jpg)
![图片[64]-全球设计案例智能库_OJBKAI.COM【CCD】西安CCBD华润润玺公寓塔楼精装公区 | 室内设计方案+效果图 | PPT(可编辑)+PDF+JPG | 49P | 262M-全球设计案例智能库_OJBKAI.COM设计智库](https://ojbkai.com/wp-content/uploads/2025/12/edab7ba7e220251217123521-2046x937.jpg)
![图片[65]-全球设计案例智能库_OJBKAI.COM【CCD】西安CCBD华润润玺公寓塔楼精装公区 | 室内设计方案+效果图 | PPT(可编辑)+PDF+JPG | 49P | 262M-全球设计案例智能库_OJBKAI.COM设计智库](https://ojbkai.com/wp-content/uploads/2025/12/db3a17f7bc20251217123519.jpg)
![图片[66]-全球设计案例智能库_OJBKAI.COM【CCD】西安CCBD华润润玺公寓塔楼精装公区 | 室内设计方案+效果图 | PPT(可编辑)+PDF+JPG | 49P | 262M-全球设计案例智能库_OJBKAI.COM设计智库](https://ojbkai.com/wp-content/uploads/2025/12/85b6f89b4120251217123524-2046x1228.jpg)
© 版权声明
网站声明 :本站属于分享网站,仅用于观看哦,并非完全原创,如有侵犯到您的权益,请告知我们,会立刻下架 - 设计智库 邮箱:sucai1588@163.com
THE END



























暂无评论内容