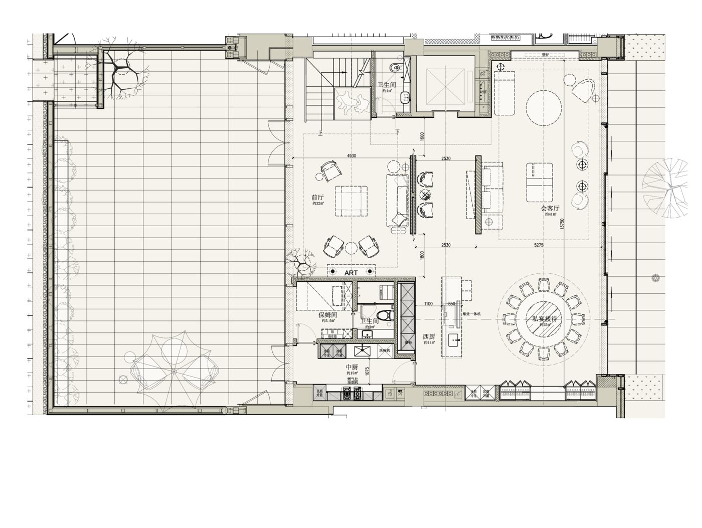
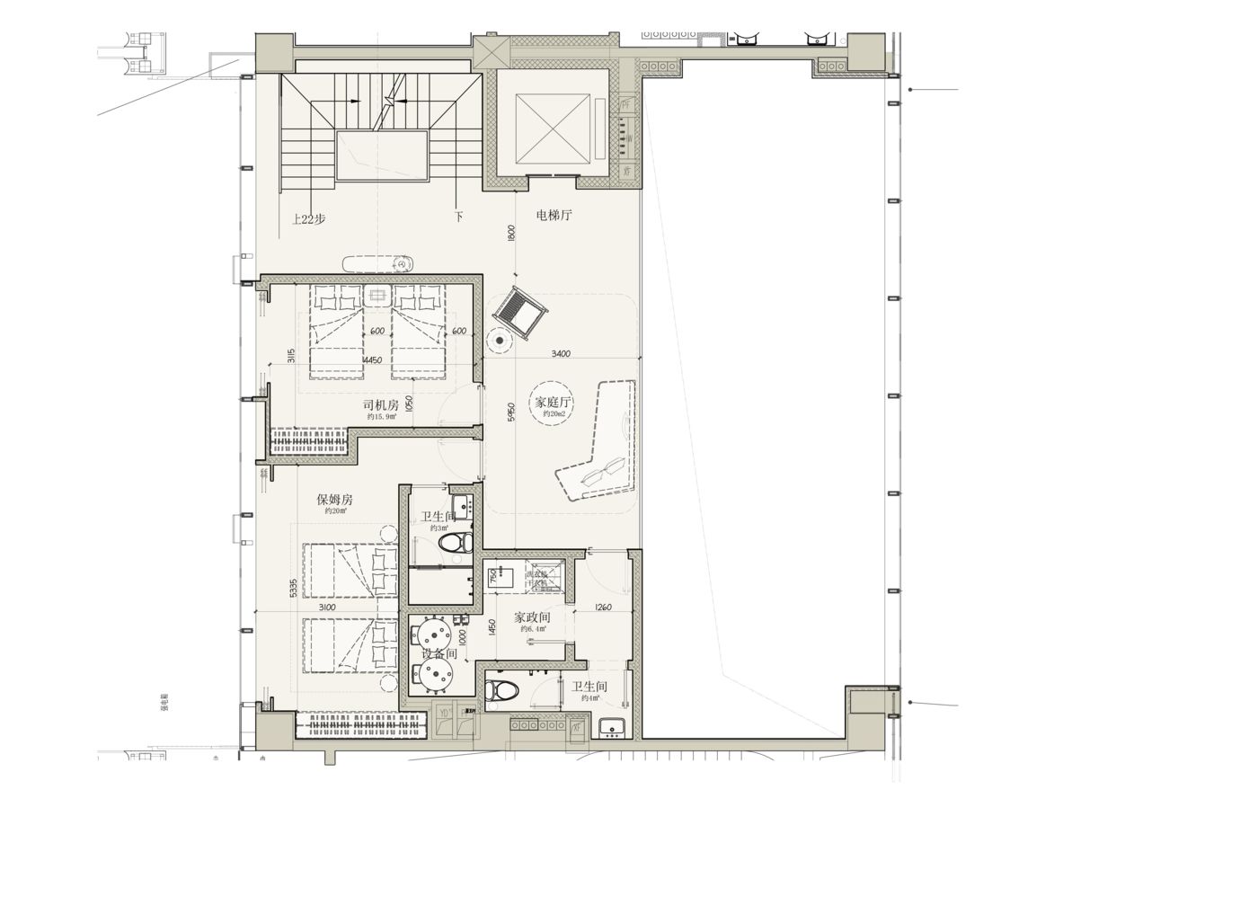
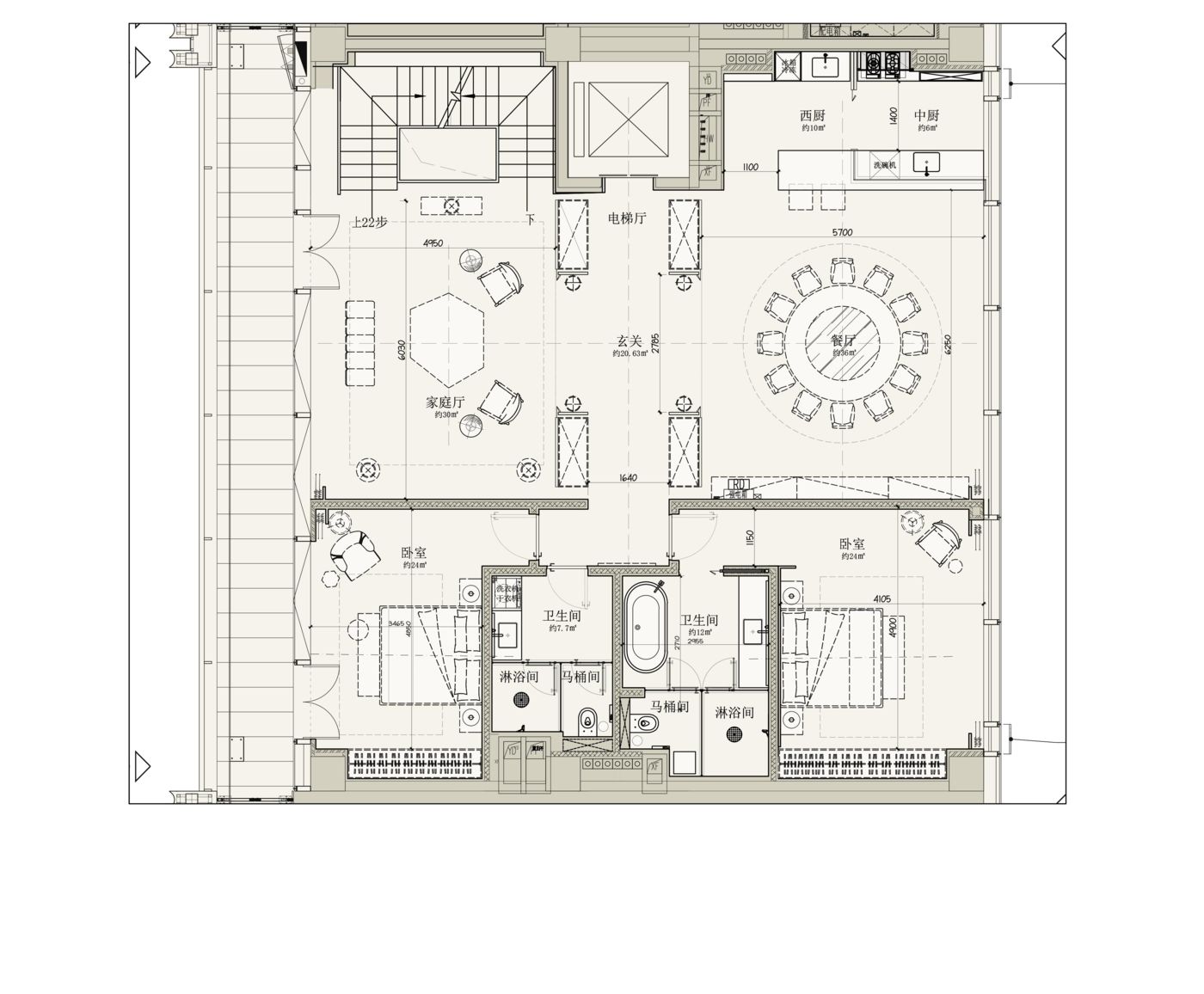
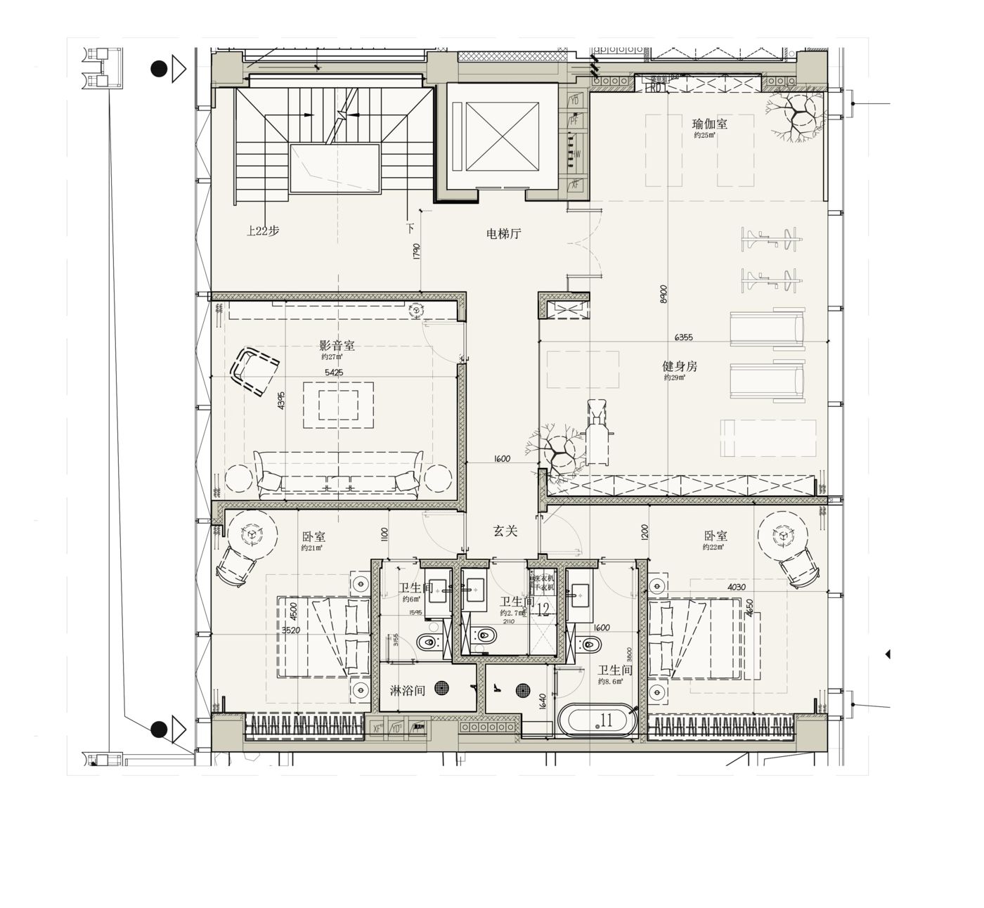
【CCD】深圳后海T3公馆03户型6层洋房别墅样板间设计方案汇报
【CCD】深圳后海T3公馆03户型6层洋房别墅样板间设计方案汇报
主题设计思想:
该设计的主题为“现代舒适与优雅细节的完美融合”。设计通过简约且精致的方式,将现代家居的舒适性与高端生活的奢华感巧妙结合。整个空间注重自然光的引入、材质的高贵运用,以及现代家居生活的功能性,创造出一个既时尚又宜居的空间。
设计风格:
- 现代简约风格:设计以现代简约为基调,注重线条的简洁和空间的通透性。家具和陈设简约而不失高贵感,摒弃繁复,强调空间的开阔性和流动性。
- 温馨奢华感:虽然整体风格偏向现代简约,但通过精致的材质选择和细节设计,赋予空间一种温馨的奢华感。木材、石材、金属等高端材质的巧妙搭配为空间增添了独特的魅力。
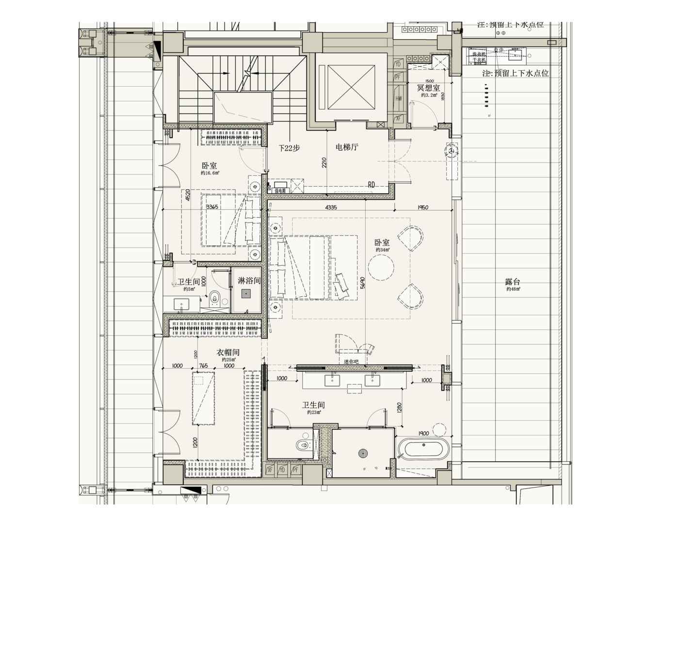
空间布局:
- 开放式布局:整个空间注重开放式布局,尤其是在客厅、餐厅和厨房区域,去除不必要的隔断,使得空间更为流畅、开阔。同时,动线清晰,保证了各个功能区域的高效使用。
- 私密区域的隔离:设计合理地分配了公共区域和私密区域,确保卧室、书房等功能区的私密性。通过巧妙的墙面设计和空间分隔,使得每个区域既独立又不失通透感。
- 景观引入:大面积的窗户设计使得室内景观与室外自然环境紧密联系,充分引入自然光,增强了空间的舒适感和与自然的连接。
色彩搭配:
- 温暖中性色调:色彩以温暖的中性色为主,如米白色、浅灰、木色等,这些色调为空间带来了宁静、柔和的气氛,同时为空间注入了现代感。
- 深色元素点缀:设计中巧妙使用了深色元素,如深木色和黑色,为空间增添了层次感和深度,使空间更具稳重感和奢华感。
- 柔和的对比:色彩上深浅搭配有序,通过柔和的对比,营造出既现代又温暖的氛围,使空间既具有动感,又不失宁静舒适感。
材质分析:
- 天然木材与石材:设计中大量使用天然木材和石材,木材的自然纹理为空间带来温暖感,而石材则增添了现代感和奢华感。两者结合使得空间更加高贵且舒适。
- 玻璃与金属:玻璃和金属材质为空间增添了现代感,尤其在窗户、灯具、装饰件等细节中,金属光泽和玻璃的透明感为空间带来了轻盈感和精致感。
- 织物与软装:软装设计采用高档织物如丝绒和麻布等,既提升了空间的舒适性,也为空间带来了柔和的气氛。床品、窗帘、沙发等细节布置使得空间更加宜人。
灯光设计:
- 自然光引入:设计大量使用落地窗和开敞的窗户,确保自然光充分引入空间,使空间变得明亮、通透,提升了整体舒适感。
- 重点照明与氛围照明结合:通过吊灯、壁灯、射灯等多种照明方式的结合,重点突出空间中的视觉焦点,如艺术墙、书架、餐桌等区域。柔和的氛围照明为空间增添了温馨感。
- 灯光层次分明:通过灯光的不同层次,营造了空间的层次感和艺术感。在不同的功能区,灯光的使用既突出了重点,又增强了空间的舒适感。
艺术陈设装饰元素:
- 艺术画作与雕塑:墙面装饰采用了现代简约风格的艺术画作和雕塑,增添了空间的文化气息。艺术作品的选择与空间的现代风格和色调搭配相得益彰。
- 绿色植物:空间中的绿色植物为空间带来了生气和自然感,柔化了现代设计的硬朗感,增强了舒适感和自然氛围。
- 精致装饰品:空间中的装饰品如精美的陶艺、装饰品等为空间增添了细腻感,同时提升了空间的精致度和艺术氛围。
软装家具:
- 沙发与座椅:沙发和座椅的设计简洁现代,采用高档面料,保证了舒适性与美学性。家具的细节设计增强了空间的温暖感和现代感。
- 餐桌与茶几:餐桌和茶几的设计精致且现代,使用木材和金属的结合,突出了空间的优雅和精致感,成为空间的亮点之一。
- 卧具与储物家具:卧具设计简洁舒适,床品的选择优质且具有现代感。储物家具的设计注重功能性与美学感的平衡,既能提供足够的储物空间,又能保持空间的整洁。
设计总结:
这套设计成功将现代简约风格与奢华细节融合,打造出一个既舒适又精致的生活空间。色彩、材质、灯光和软装的精心搭配,创造了一个温暖、现代且功能性的居住环境。每个区域都经过精心设计,注重功能性与美学性的结合,满足了现代家庭对高端生活的需求。整体设计不仅提供了舒适的生活空间,也通过细节与艺术感提升了空间的品位,完美地展现了现代奢华的设计理念。
![图片[1]-全球设计案例智能库_OJBKAI.COM【CCD】深圳后海T3公馆03户型6层洋房别墅样板间设计方案汇报 | PPT+PDF+JPG | 96P | 100M-全球设计案例智能库_OJBKAI.COM设计智库](https://ojbkai.com/wp-content/uploads/2025/12/93257a065320251217104921-1024x342.png)
深圳后海T3公馆效果图(2025年12月4日更新)
深圳后海T3公馆效果图(2025年12月4日更新)




























© 版权声明
网站声明 :本站属于分享网站,仅用于观看哦,并非完全原创,如有侵犯到您的权益,请告知我们,会立刻下架 - 设计智库 邮箱:sucai1588@163.com
THE END






























































































暂无评论内容