【CCD】680㎡ | 世界级豪宅大平层样板间设计方案
一、主题设计思想
「城上云庭 · 环序礼制与当代雅奢的并置」 以环形顶光—轴线对称—纵向柱廊构成礼序骨架,把酒店化的到达仪式、画廊式的展陈动线与豪宅日常生活的功能颗粒度整合为一体:到达—观演—社交—私享—沉眠。材料选择以“石—金—木—织”四层递进,既呈现城市塔尖的力量,也留出可长期栖居的温度。
二、设计风格
- 现代雅奢 × 海派/东方意向:体块克制、比例端正;以圆拱/圆盘顶、屏风/格栅与玉石/金属细节传达含蓄的东方礼制。
- 酒店化豪宅:前场形象—大客厅—会客餐叙—多功能书茶—主人套—多套房—家政后勤,全面支持接待与起居双维度。
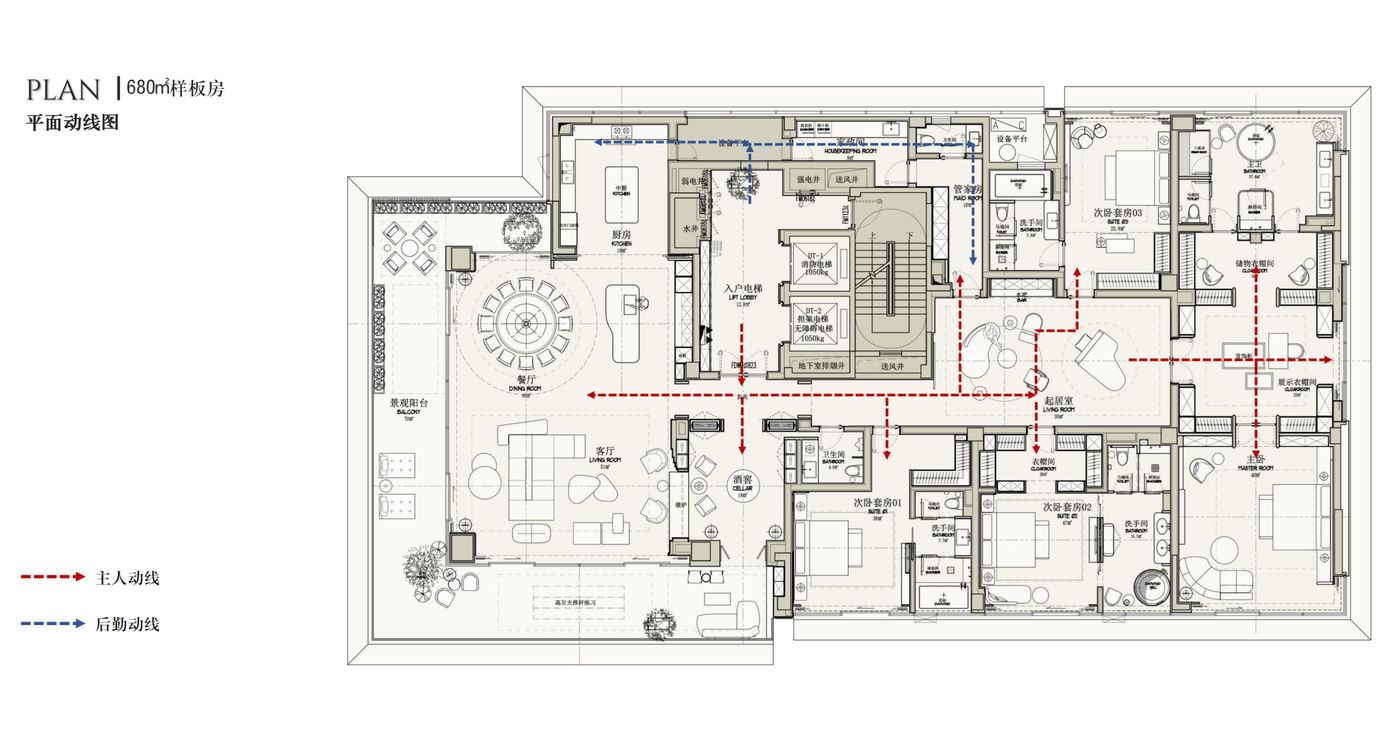
三、空间布局(名称 + 应用方式 + 功能特性)
- 玄关/门厅:石材地拼+金属门套,顶设环形/椭圆灯槽作为“首个圆”,完成降噪、收纳与换景。
- 画廊走廊:长向均匀洗墙+艺术装置,连接前场与客餐区,承担品牌/艺术叙事。
- 大客厅(观景面):通高或加大开窗,电视/壁炉与城市景观同轴;可容纳两组会客,配合环形吊顶组织声场。
- 餐厅/私宴:主餐桌与备餐区并联,周界设酒柜/器皿柜;与中厨/西厨串接,满足家宴与主厨现场出品。
- 多功能书茶室:可开合隔断,兼容书写、茶叙与静坐;与阳台/景观口呼应。
- 长吧台/书吧:连接二次起居或餐区,承担日常轻社交。
- 主人套:前厅—卧区—双衣帽(His/Her)—双台位卫浴—泡浴/蒸淋—私密书写;动线闭环且互不打扰。
- 长辈/客人套房:靠近前场但具独立性,卫浴干湿分区。
- 儿童/次卧套:学习位与收纳模数化,易迭代。
- 后勤/家政:家政间、备餐与设备间隐于次动线,确保前场纯净。
四、色彩搭配(颜色名称 + 应用位置 + 色彩特征 + 搭配作用)
- 象牙米白|大面墙顶、环形顶盘|低饱和、强漫反|承托金属与石材的高光;放大空间感。
- 暖烟灰/云灰|地面石材、织物地毯|中性稳重|连接冷暖材、压住画面。
- 深咖/胡桃木|柱身/墙裙/柜体|温润、吸音|消解石材冷感,提供家居温度。
- 香槟金/赤铜金(点缀)|线脚、格栅、灯具|柔和光泽|定义边界与比例。
- 玉石绿/孔雀蓝(点睛)|端景画屏/软包/地毯纹理|建立记忆锚点,与城市天际线色温呼应。
五、材质分析(名称 + 应用位置 + 材质特性)
- 连纹大理石/大板岩|门厅、大堂、端景墙、台面|耐磨耐污、体块完整;与水刀拼花形成礼序中心。
- 金属(拉丝香槟/黑钛)|柱分缝、门套、线脚、灯具匣体|精准收口、耐久,控制奢感尺度。
- 木饰面(直纹/微开放漆)|背景/包房/卧室立面|吸音、控反光、提升亲和度。
- 丝麻/丝绒软包|靠背墙、包房、家具|触感细腻、声学友好。
- 玉石/矿物板(局部)|前台/端景/餐边柜背板|纹理稀缺性打造记忆点。
- 玻璃(夹绢/半透)|隔断与柜门|通透与私密平衡,增强层次。
六、灯光设计(灯光类型 + 位置 + 功能特性)
- 环形/椭圆顶光|门厅/大客厅/前场|均匀面光+向心聚焦,形成“环序”母题。
- 线性洗墙|画廊/柱廊/肌理墙|拉出竖向节奏与材质肌理。
- 窄束射灯/轨道灯|沙盘/艺术装置/画屏/餐桌|CRI≥90、UGR≤19,精准聚焦。
- 桌面焦点吊灯|餐厅/私宴/书茶位|下沉光场、控制眩光,稳定交谈节奏。
- 地脚/踏步引导|走廊与台阶|夜间安全与仪式边界。
- 色温/照度建议:公区3000–3500K;餐桌面300–350lx;画廊垂直照度≥150lx;卧室2700–3000K、150–200lx;化妆/更衣≥500lx、显指≥95。
七、艺术陈设装饰元素(名称 + 位置 + 特性/作用)
- 抽象“云/涟/山形”装置|前场顶/端景|把自然意象抽象化,成为精神图腾与拍照点。
- 矿物/玉石画屏、漆艺屏风|画廊、客餐背景|材质叙事,提升文化密度。
- 书吧器物与青铜摆件|层板/壁龛|粗细肌理对位,强化可亲近性。
- 织物层次(丝麻/羊毛)|地毯、靠包、窗帘|软化硬质界面,优化声学。
- 花艺与绿植(白/金/深绿)|前台、桌面与转角|季节性换陈接口,维持生命力。
八、软装家具(名称 + 应用位置 + 材质特性)
- 模块化沙发 + 异形/环形茶几|大客厅|围合多半径社交,石/木/金属混材,稳重易维护。
- 主餐桌(大直径圆/长桌)+ 高背餐椅|餐厅|岩板或实木台面,承载私宴礼序。
- 躺椅/贵妃榻|景窗侧|形成“慢观看”的停驻点。
- 书茶一体长案 + 单椅|多功能室|木石结合,支持茶具/书写双模式。
- 主人床(平台床)+ 通长床头板|主人卧|隐藏灯带与插座,保证包裹感与功能。
- 衣帽间系统(His/Her)|主人套|岛台+玻璃柜门+层板灯,模数化管理。
- VIP会客/包房沙发组|可开合隔断区|皮/织混搭、耐污耐磨。
九、设计总结
这套约680㎡的大平层样板以“环序之光”为视觉母题,以轴线对称与柱廊比例建立空间秩序;材料从石—金—木—织层层递进,完成“气场—温度—触感”的渐变。功能上,以前场—画廊—客餐—书茶—多套房—家政的完整链路,兼顾接待展示与日常起居;灯光以面光打底、洗墙塑形、焦点定场实现全时段可控的情绪切换。整体呈现奢而不耀、稳而不重、雅而有序的世界级豪宅范式。
![图片[1]-全球设计案例智能库_OJBKAI.COM【CCD】680㎡ | 世界级豪宅大平层样板间设计方案 | PPT+PDF+JPG | 60P | 461M-全球设计案例智能库_OJBKAI.COM设计智库](https://ojbkai.com/wp-content/uploads/2025/12/1498a3ffae20251218011327-1024x530.jpg)
【CCD】680㎡ | 世界级豪宅大平层样板间设计方案
























































11111
© 版权声明
网站声明 :本站属于分享网站,仅用于观看哦,并非完全原创,如有侵犯到您的权益,请告知我们,会立刻下架 - 设计智库 邮箱:sucai1588@163.com
THE END


























暂无评论内容